奥斯陆政府新区设计竞赛获奖作品
发布时间:2017年8月9日 分类:设计大赛 浏览量:2423
竞赛背景资料
在2011年7月22日爆发在挪威首都奥斯陆的那场骇人听闻的恐怖事件时候,奥斯陆市政府就被迫搬迁,市政府的各个部门被分散在市区各处。自15年以来由Statsbygg就承担了奥斯陆政府新区项目计划的相关工作,在2015年举办了一次国际性的研究竞赛,有6家知名的设计机构,包括BIG、MVRDV、Snøhetta等,与当地的学生团队共同完成。
去年,该计划进入实际规划阶段Statsbygg在挪威国内邀请了59家设计机构参与正式竞赛,其中有20家是建筑设计公司,最终由8家通过了资格预审(其中一家因缺乏承诺说明被要求退出),最终7家入围设计公司提交了各自的设计提案,他们分别是:
- Dyrvik Arkitekter, Narud Stokke Wiig AS, L2 Arkitekter, Østengen & Bergo AS, Landskapsfabrikken, Insenti, Høyer Finseth, Haug og Blom-Bakke AS, Unionconsult, Deltatek, Malnes og Endresen AS;
- LPO Arkitekter, A-Lab, Ratio Arkitekter, IARK, Gullik Gulliksen AS, Sweco, Norconsult og Dr. Techn. Olav Olsen AS;
- Lund Hagem Arkitekter, Dronninga Landskap, Høyer Finseth, ÅF Advansia, ÅF Engineering, Tegn_3, Atelier Oslo, Pabas, UnionConsult og Safetec.
- Niels Torp + arkitekter, HRTB Arkitekter, Code arkitektur, Grindaker landskapsarkitekter, Bar bakke landskapsarkitekter, WSP Norge, Høyer Finseth, Unionconsult, AJL, Deltatek og ECT;
- Nordic – Office of Architecture, Rambøll, SLA, Bjørbekk & Lindheim, Asplan Viak, COWI, Aas-Jakobsen, Per Rasmussen, Haptic Architects, Scenario og NIKU;
- Reiulf Ramstad Arkitekter, Pir II, 3RW, LALA Tøyen, Smedsvig Landskapsarkitekter, WSP Norge, Høyer Finseth, Niras, ECT, SAAHA, 70° Nord, Deltatek og Erivé;
- Snøhetta, LINK arkitektur, Multiconsult, Hjellnes Consult og Erichsen & Horgen.
最终竞赛由Nordic – Office of Architecture为主导的团队和以LPO Arkitekter为主导的团队共同赢得了竞赛。
竞赛获奖情况
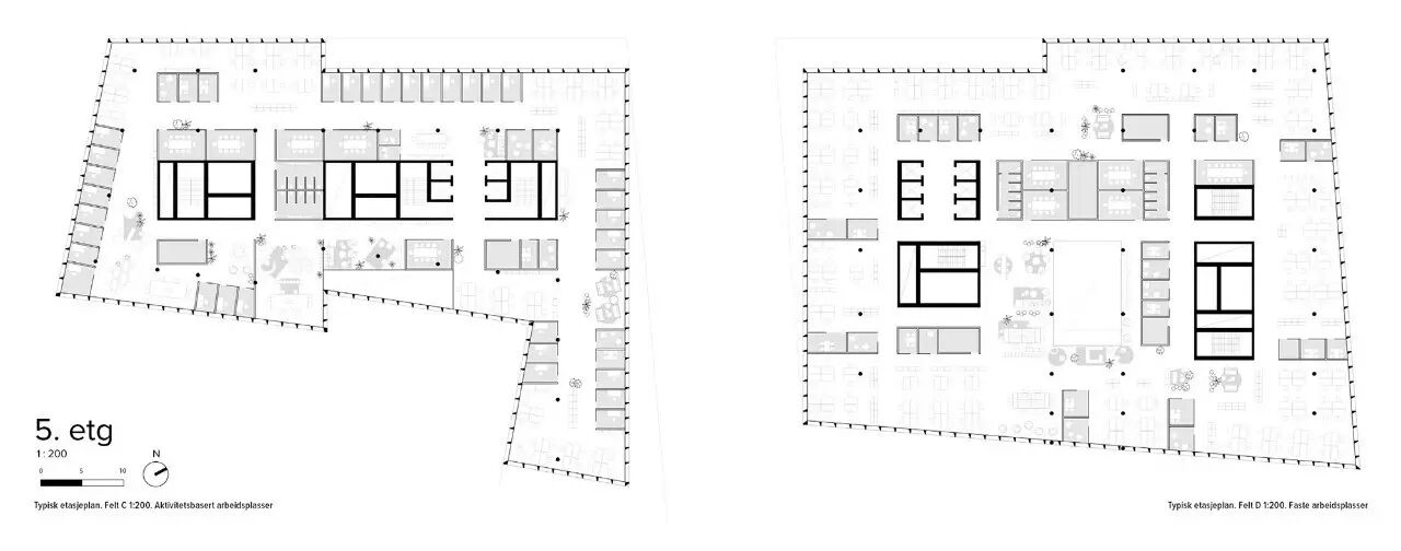
获胜团队:LPO Arkitekter, A-Lab, Ratio Arkitekter, IARK, Gullik Gulliksen AS, Sweco, Norconsult og Dr. Techn. Olav Olsen AS;

©LPO Arkitekter

©LPO Arkitekter

©LPO Arkitekter

©LPO Arkitekter

©LPO Arkitekter

©LPO Arkitekter

©LPO Arkitekter

©LPO Arkitekter

©LPO Arkitekter

©LPO Arkitekter

©LPO Arkitekter

©LPO Arkitekter

©LPO Arkitekter

©LPO Arkitekter

©LPO Arkitekter

©LPO Arkitekter

©LPO Arkitekter
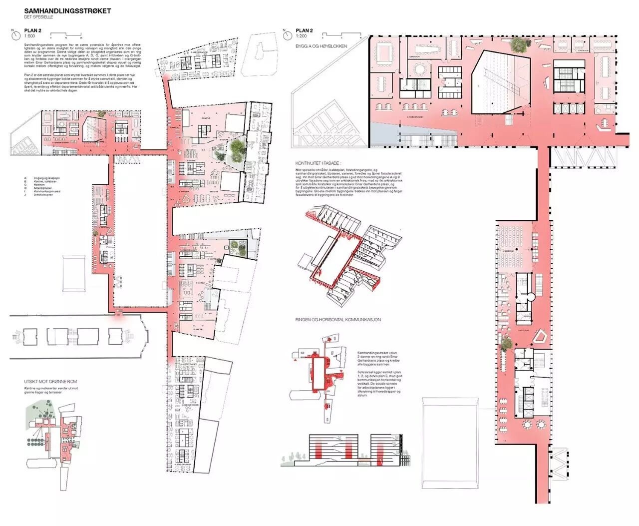
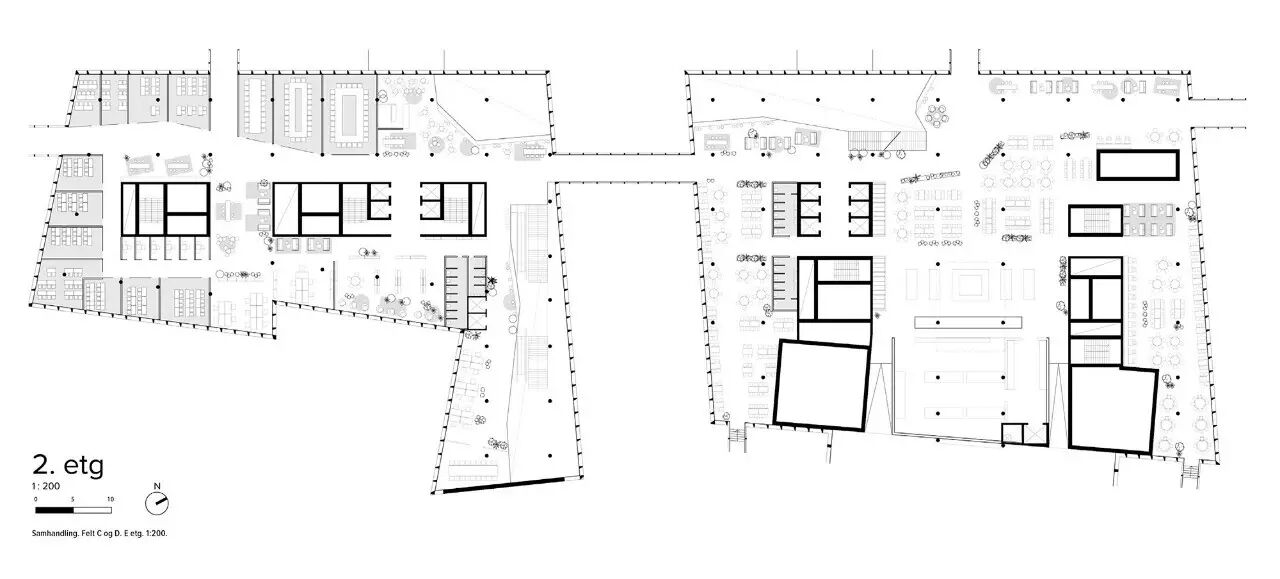
获胜团队:Nordic – Office of Architecture, Rambøll, SLA, Bjørbekk & Lindheim, Asplan Viak, COWI, Aas-Jakobsen, Per Rasmussen, Haptic Architects, Scenario og NIKU

©Nordic – Office of Architecture

©Nordic – Office of Architecture

©Nordic – Office of Architecture

©Nordic – Office of Architecture

©Nordic – Office of Architecture

©Nordic – Office of Architecture

©Nordic – Office of Architecture

©Nordic – Office of Architecture

©Nordic – Office of Architecture

©Nordic – Office of Architecture

©Nordic – Office of Architecture

©Nordic – Office of Architecture

©Nordic – Office of Architecture

©Nordic – Office of Architecture

©Nordic – Office of Architecture
入围团队:Dyrvik Arkitekter, Narud Stokke Wiig AS, L2 Arkitekter, Østengen & Bergo AS, Landskapsfabrikken, Insenti, Høyer Finseth, Haug og Blom-Bakke AS, Unionconsult, Deltatek, Malnes og Endresen AS

©Dyrvik Arkitekter

©Dyrvik Arkitekter

©Dyrvik Arkitekter

©Dyrvik Arkitekter

©Dyrvik Arkitekter

©Dyrvik Arkitekter

©Dyrvik Arkitekter

©Dyrvik Arkitekter
入围团队:Lund Hagem Arkitekter, Dronninga Landskap, Høyer Finseth, ÅF Advansia, ÅF Engineering, Tegn_3, Atelier Oslo, Pabas, UnionConsult og Safetec

©Lund Hagem Arkitekter

©Lund Hagem Arkitekter

©Lund Hagem Arkitekter

©Lund Hagem Arkitekter

©Lund Hagem Arkitekter

©Lund Hagem Arkitekter
入围团队:Niels Torp + arkitekter, HRTB Arkitekter, Code arkitektur, Grindaker landskapsarkitekter, Bar bakke landskapsarkitekter, WSP Norge, Høyer Finseth, Unionconsult, AJL, Deltatek og ECT

©Niels Torp + arkitekter

©Niels Torp + arkitekter

©Niels Torp + arkitekter

©Niels Torp + arkitekter

©Niels Torp + arkitekter

©Niels Torp + arkitekter

©Niels Torp + arkitekter

©Niels Torp + arkitekter
入围团队:Reiulf Ramstad Arkitekter, Pir II, 3RW, LALA Tøyen, Smedsvig Landskapsarkitekter, WSP Norge, Høyer Finseth, Niras, ECT, SAAHA, 70° Nord, Deltatek og Erivé

©Reiulf Ramstad Arkitekter

©Reiulf Ramstad Arkitekter

©Reiulf Ramstad Arkitekter

©Reiulf Ramstad Arkitekter

©Reiulf Ramstad Arkitekter

©Reiulf Ramstad Arkitekter

©Reiulf Ramstad Arkitekter

©Reiulf Ramstad Arkitekter
入围团队:Snøhetta, LINK arkitektur, Multiconsult, Hjellnes Consult og Erichsen & Horgen;

©Snøhetta

©Snøhetta

©Snøhetta

©Snøhetta

©Snøhetta

©Snøhetta

©Snøhetta

©Snøhetta







