2020顶峰设计奖 | 公共空间实例类银奖 -《堤亚纳湾·营销中心》
发布时间:2021年3月16日 分类:建筑环境作品 浏览量:1706

2020顶峰设计奖的参赛作品数量全省14地市作品总计1196套有效作品,大赛共决出了261套获奖作品,为湖南建筑设计与空间设计行业发掘了更多优秀的新生力量。2020湖南最具年度代表性的设计作品再次脱颖而出,荣获各类单元奖项;顶峰设计奖同样对年度设计创新力产品、年度新锐建筑室内设计师、年度建筑室内设计机构、年度行业推动人物/机构予以表彰。
▼
2020 顶峰设计奖获奖作品
特辑 PART 01
—
作者
机构
————

▼










一
以简约的现代主义为主线,墙面石材大尺度的运用,保证了空间的简洁明快,提升室内的视觉美,灰白色的空间基调,宁静平和且富有张力。开放式的平面布局,流动性的空间动线,满足了空间销售属性,带来高效与舒适的客流引导。拆除楼板,将自然天光引入室内对功能进行区间分割,既是一种有趣的人流动线切分方法,同时打破既定空间格局,得到纵向的空间延展。因楼板拆除而裸露出的建筑骨架,则以强化的设计手法,增强构造穿插而达到梁架消隐的效果,大道至简,以繁驭简,以新次序建立新的空间语言,丰富设计表达。新旧体块之间的旋变、叠加与交错,展演出视觉上的多维立体感与次序感,不同材质的转化过滤出不同的光线质感,强有力的生长结构,让视觉透过天井延伸至室外。钢制延展结构的应用,冷静的线条结构刻画,赋予步梯雕塑般的现代美。结构的优雅特质与灰白色墙面的交叠,产生了特殊的韵律感和节奏感,形成整体空间内在的呼应互动。儿童空间的木质饰材与弧形的表达柔化了灰白空间的冷硬质感,带来温度与柔软。对比沙盘区域沉静的艺术氛围,光线通过镜面不锈钢将折射出水波粼粼,化为渺渺纹路而呈现的灵动之美,造就静中有动、动中思静之空间动势。
自然带来光,结构造就影,有了光影,空间便有了跳动和灵魂,有了光影,空间便有了艺术。安静无声的时间推动着光影,让整个设计空间变成了一座极具艺术气息的雕塑。

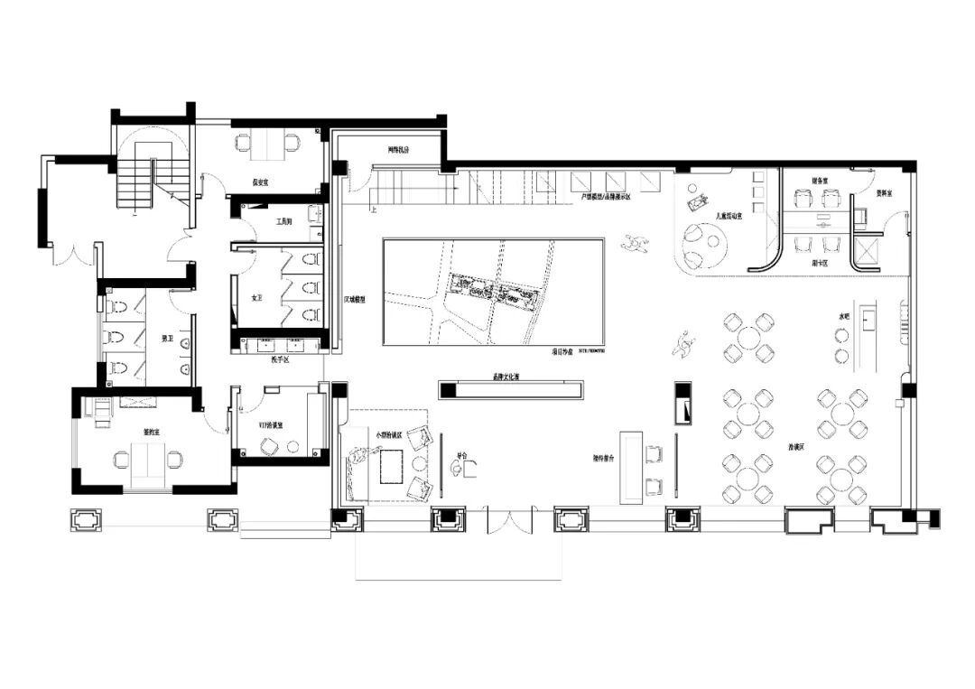
▲1F平面图

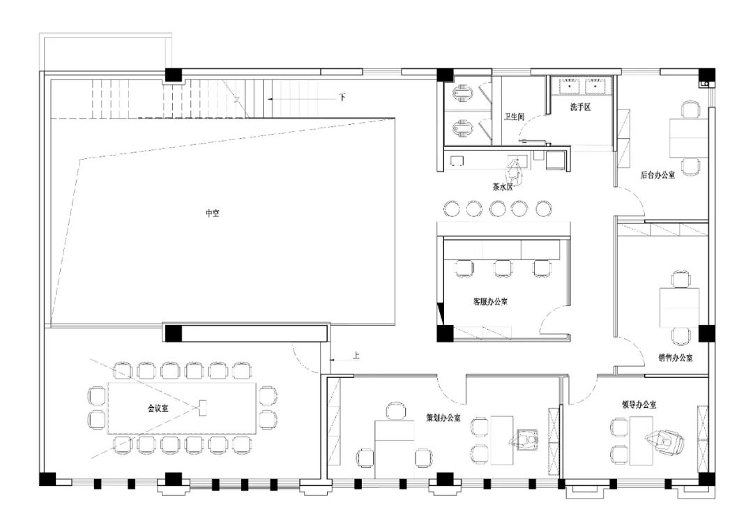
▲2F平面图







