2020顶峰设计奖 | 高校组创意类银奖 -《方-图书馆建筑设计》
发布时间:2021年5月18日 分类:建筑环境作品 浏览量:1557

▼
2020 顶峰设计奖获奖作品
特辑 PART 08
—
作者
院校
▼





一
后湖景区是岳麓山国家重点风景名胜区的景区之一,是以湖光山影为主体,融科技、风情、文艺为一体,以水上活动、文化参与、科普展览、游览休闲为主要游赏内容的岳麓山风景名胜区的新生主题景区。地处后湖路以东、清水路以北、麻园路以西、阜埠河路以南范围的用地面积86.42公顷,还有33公顷用地处于后湖路以西。
后湖艺术高地,背靠岳麓山,身傍后湖和湘江。即使放眼全国,也找不到这种天时地利的环境。我觉得怎样展望它都觉得不够。这将是一个精神高地。
学生
后湖项目选址独特的位置主要有几点,第一点就是位于基地北侧的湖南大学学生宿舍,成片区的宿舍建筑群以及学生人群都将对项目产生极大的影响。
首先是建筑群,密集的学生宿舍建筑为基地提供了十分强烈的背衬作用,基地北侧形成围拢之势将场地整体像南侧衬出,其次宿舍建筑群背后的岳麓山更是从山-宿舍建筑群-基地-后湖公园,形成这样渐次降低、逐渐开阔的的剖面序列。
其次是学生人群。
大量的学生群体,会是该图书馆项目的主要使用人群。
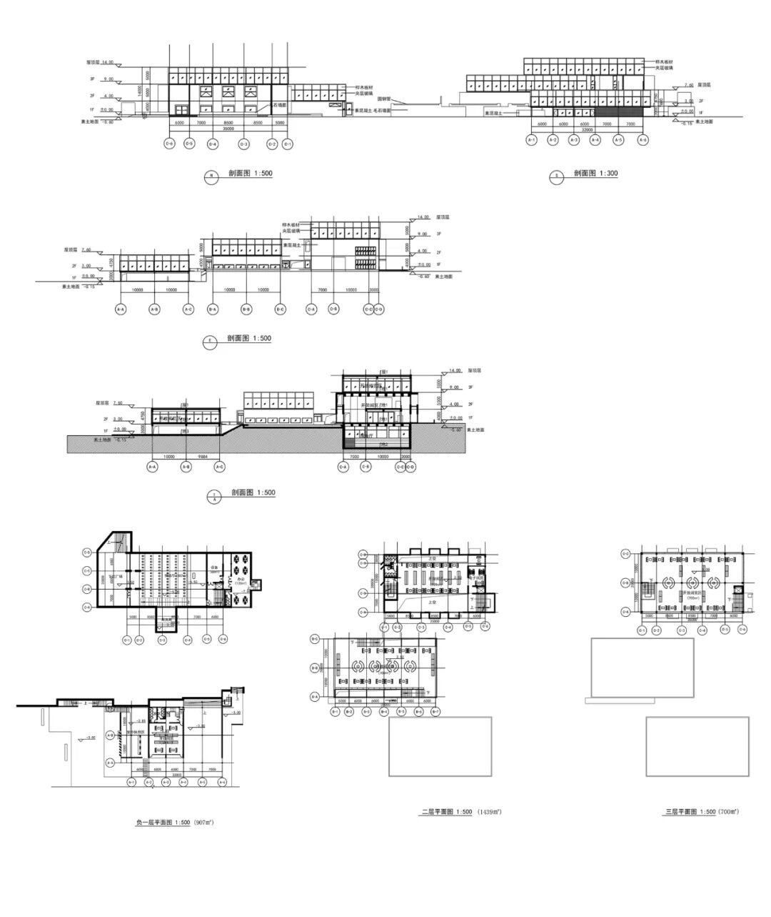
两个矛盾
同时处于学生群体和公园群体,同时需要图书馆安静的氛围和公园流动的功能。对这两个矛盾的化解会是本次设计的重点所在。
所以设计中分别从剖面、标高、立面、开放和封闭几个方面对应对环境和建筑需求的变化。









