高级黑的魅力!
发布时间:2017年7月25日 分类:设计视角 浏览量:1535
高级黑与生俱来的艺术范儿
高级黑
如果说,高级灰是设计师
钟爱的高雅雅致代表色
那高级黑就是沉稳霸气的典型色

Escapefromsofa
来自土耳其伊斯坦布工作室
所设计的精品公寓,都具有高级黑的特点
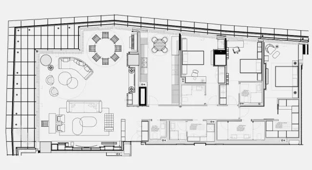
01
TURKMEN HOUSE

△平面布局细节图
300m²精品公寓
属于贝西克塔斯的高端住宅区


公寓共有三间卧房,皆配有一体化浴室
并将其中一间用作洗衣房
其余的空间,全都留给宽敞的客厅与厨房



除了客厅中电视背景墙
家中的储物区
也选用了大理石材质


靠近窗台的过道
并未闲置,而是将其处理成了阳光办公房


开放式的餐厨空间
并未有明显的空间隔断
蓝色的圆形地毯,便是餐厅范畴


井然有序的卧房
床头的皮面靠背将走道
分隔成一块单独空间


不同的卧房,各有特色
纯色的木饰面
也显得极为高端



02
KHALKEDON HOUSE

250m²LOFT,三口之家
一楼用作家中的起居室
二层则是卧房

△平面布局细节图
定制版的楼梯
在木面之中,还参杂了黄铜质地

客厅中的内饰,也是如此
黄铜质地的高柜
与高级黑的墙面相互映衬




03
E.Ö. HOUSE140㎡公寓

现代和简约的三口之家
通过房子的每一个细节展现出来
△平面布局细节图
定制化的家具
为了彰显简明的线条感
包边处用黑铁加以处理


每一个家具都是定制设计
大多是手工制作
餐桌顶部玄关的吊灯
····











