你的下一个获奖机会,从这里开始。
专注全球创意竞赛,助力你的高光时刻。
3393843933@qq.com
18637207311
首页
设计大赛
工业产品大赛
视觉传达大赛
建筑环境大赛
服装服饰大赛
影像艺术大赛
竞赛资讯
获奖作品
工业产品作品
视觉传达作品
建筑环境作品
服装服饰作品
影像艺术作品
设计学院
毕业设计
课程设计
设计视角
设计常识
设计图书
报名参赛
训练营
竞赛备忘录
设计网址
当前位置:
首页
设计大赛
华盈联合办公中心建筑方案设计征集竞赛
华盈联合办公中心建筑方案设计征集竞赛
发布时间:2021年2月9日
分类:
设计大赛
浏览量:1781
一、项目名称
华盈联合办公中心建筑方案设计
二、项目背景
华盈尚景项目位于山东省烟台的招远市。整体上以一个总面积约1.3万平米的,下沉约6.5米的中轴广场贯通南北。中轴集合了景观、社群活动空间、配套商业等功能。中轴最北端是大型绿地广场,最南端是堪称整个社区魂魄所在的馥香湖。而住宅产品布局也是由南北高层逐渐向中心的多层、低层过度,弧形天际线,意境优美。其中独具特色的合院、 叠墅产品在布局上恰好位于下沉中轴广场两侧,整个项目建筑风格统一多样,高层大都会,低层简约法式,而中轴广场则是现代罗马风,整体美观大气协调,细部各有特色。
△鸟瞰图
△分析图
中轴广场设计有剧场、礼堂、书房、阶梯讲堂、游泳馆等,商业配套有咖啡店、主力店、儿童游乐、儿童社交、浪漫爱情主题基地等。
△中轴线模型图
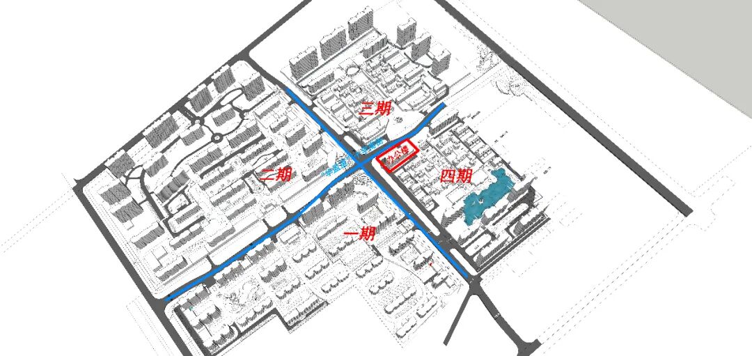
本次竞赛的建筑标的为我们的的联合办公中心,位于四期西北部,紧邻华盈里商街十字路口,我们希望打造成一个有特色的标志性建筑物。
本建筑在前期可以部分作为华盈地产的总部,其余部分将对外出租(办公用途)。希望此建筑能反映出我们企业的气质。
另外设计要求本办公楼预留后期将整栋楼改为公寓或其他场所的可能性。屋顶露台应该充分利用,如东侧露台应该可以观中轴,西侧观华盈里十字商街,将露台与室内设计相结合。(详细说明请见附件导则)
三、征集人
烟台华盈房地产开发有限公司
四、征集规则
(一).方案征集方式
本次征集采用网上公开发布设计要求,应征人按任务要求进行原创设计,并在线提交成果作品。
能够独立承担民事责任有本项目设计服务能力的境内或境外机构,包括企业法人、个人、其他组织均可参加。
(二).提交
作品提交邮箱:info@abbs.com。
提交成果时需与附件中的应征人信息汇总表一同提交。
(三).征集时间
2021年02月08日12时整至2021年03月15日17时30分整(北京时间)。
征集结果将在2021年04月于ABBS官网进行公示。(注:如遇特殊情况,征集人有临时调整征集规则与时间的权利)
(四).答疑
本征集答疑采取邮件形式,邮箱地址同提交作品地址,不接受除邮件形式以外的任何方式答疑。
五、设计条件及成果要求
(一) 规划落位
本次方案征集的联合办公中心,位于四期西北部,紧邻华盈里商街十字路口,希望打造成一个有特色的标志性建筑物。
△办公楼位置图红框位置
以上为联合办公中心规划落位简图,详细资料可见附件
(二) 相关参数
联合办公中心总面积约5000㎡左右,整体高度建议不超过24米,其中联合办公空间建议(2000-2500㎡),层高层数布局等可根据个人思路自行调整。可参考如蜜蜂科技(BEEPLUS)的此类空间。
(三)成果要求
1. 设计风格具有一定艺术性,要有较强的功能性、实用性。(应避免大面玻璃幕墙,可以自然通风,阳光也可以照进来,建筑与自然充分交融),能反映出企业气质,与华盈地产的开发理念相吻合。
2. 功能复合化,即考虑未来如果不做办公,用于别的空间使用的设计要提前考虑。
3.方案深度,应该有完整的平面布局,立面图,剖面图。
4.请提交手绘或电子效果图或者草图大师模型进行说明,创意设计需有详细说明。
5.设计方案应具备可实现性,应对材质应用做出标识。
6.其它要求可参照附件导则及其他技术文件资料。
六、奖励及相关事宜
(一)奖励
征集人对应征方案进行综合评议后,评选出相应的获奖作品
第一名1位:奖励人民币10万元
第二名1位:奖励人民币3万元
第三名3位:各奖励人民币1万元
(二)所有获奖方案的知识产权和使用权均归征集人所有。方案征集人可在支付本文所述奖金后,无条件使用、修改、调整该设计方案。 凡不符合本次方案征集设计要求或者明显粗制滥造,并有抄袭篡改他人作品嫌疑等情况的,将被判定为无效文件,自动失去评选资格,并不支付任何费用。
(三)涉及到的所有奖金均指人民币,奖金含税;没有受到奖励的应征人为准备方案征集而发生的一切费用均应征方自行承担,此次征集所涉国内外的税费均由应征方自行承担。
(四)征集人有权利就同一项目,同一征集条件开展新一轮的征集活动。
(五)解释权:以上公告内容,如有不解事宜,请联系征集人。
七、联系方式
征集人:烟台华盈房地产开发有限公司
联系人:王先生
联系电话:(+86)13573575767(同微信)
咨询方:ABBS建筑网站
联系人:朱女士
联系电话:
(+86)028-61998484
(+86)18080818336(同微信)
联系邮箱:info@abbs.com
请点击下载相关附件
标签
:
中心
,
办公
,
华盈
,
建筑
,
征集
,
方案
,
竞赛
,
联合
,
设计
如需合作请电话联系或加微信,18637207311(微信同号)
本网站中未标注“来源或是标注“来源**(网站)”的作品,均转载于第三方网络平台,本网站转载系出于传递设计大赛信息之目的,不保证所有赛事的准确性、和完整性,请您在阅读、创作过程中自行确认,不代表本站的观点和立场,版权归原作者所有。若有侵权或异议请联系我们删除。
如遇下载附件无权限,请使用谷歌浏览器下载!
上一篇:
查看详情 +
2020法国凡尔赛建筑奖(The Prix Versailles)获奖作品
下一篇:
查看详情 +
深圳创新创意设计学院方案设计国际竞赛获奖方案
相关推荐
华盈社区配套书房建筑设计方案征集公告
2020年12月2日
国家建筑绿色低碳技术创新中心LOGO设计方案征集
2023年8月26日
深圳金融文化中心方案设计国际竞赛获奖方案揭晓
2021年2月27日
深圳国际演艺中心方案设计国际竞赛获奖方案揭晓
2021年2月27日
深圳金融文化中心&国际演艺中心方案设计国际竞赛入围作品
2020年11月20日
深圳创新创意设计学院方案设计国际竞赛-公开征集资格预审
2020年9月10日
首届大陈岛建筑方案设计竞赛获奖作品
2020年6月6日
国深博物馆(暂用名)建筑方案设计国际竞赛
2020年3月26日
深圳歌剧院建筑方案设计国际竞赛
2020年1月19日
2019第二届“北林国际花园建造节”主题发布及设计竞赛方案征集
2019年1月8日
微信公众号-设计竞赛网
微信客服
微信公众号-设计竞赛网站
返回顶部