2020顶峰设计奖 | 商业空间实例类银奖 -《国金中心软装买手店》
发布时间:2021年3月23日 分类:建筑环境作品 浏览量:1952

▼
2020 顶峰设计奖获奖作品
特辑 PART 02
—
作者
机构
————

▼










一
曾秦时明月汉唐天,邀骊山长河落日圆·梦回长安。大明宫位于现今的未央区。曾经大唐盛世,繁华似锦。千年以后的大明宫只留下了一些瓦砾、一些陈土、一些遺址和一些影子。我们通过李白所留下的诗词歌赋,重新回到那个风雅精致、浪漫诗意的长安。
九龙仓买手店位于长沙市最繁华的市中心地带,也是整个长沙经济、文化,商业多元素的交汇之地,而买手店就位于长沙市最高楼国金中心里面,注定它的设计与诞生离不开时尚、流行、高端等著名词。而设计师的设计手法与内容,让这里营造出了独特的潮流与尊贵,为顾客充分展现了买手店的千秋辉煌。
买手店入口通洞设计以一个铜板包围的短廊开始,这也是设计师对整个空间的巧秒规划从这里开始,四周的铜板像一扇金碧辉煌的大门,而那一株枯木像指引着什么,尽头的绚丽和段廊的简洁鲜明对比着,似乎有一种柳暗花明又一村的感觉。这样的布局寓意和空间材料色彩搭配,也在将人们一步步引入那神秘的内部。
本案作为一家国际大牌买手店,一种以目标客户的时尚观念和潮流趣味为基准的商业模式,设计师也是通过空间和环境的营造,让内部的氛围和腔调,为品牌店创造出符合各类品牌家具气质的视觉体验和良好陈列展示效果的专属定制店。整个空间设计就像一面艺术展览,陈列的物品都被渲染上一层艺术色彩。好的空间会让人想要去认识和了解,而九龙仓买手店就是这么一家值得细品的国际品牌店,里面有太多不可思议的品牌和耐人寻味的故事。

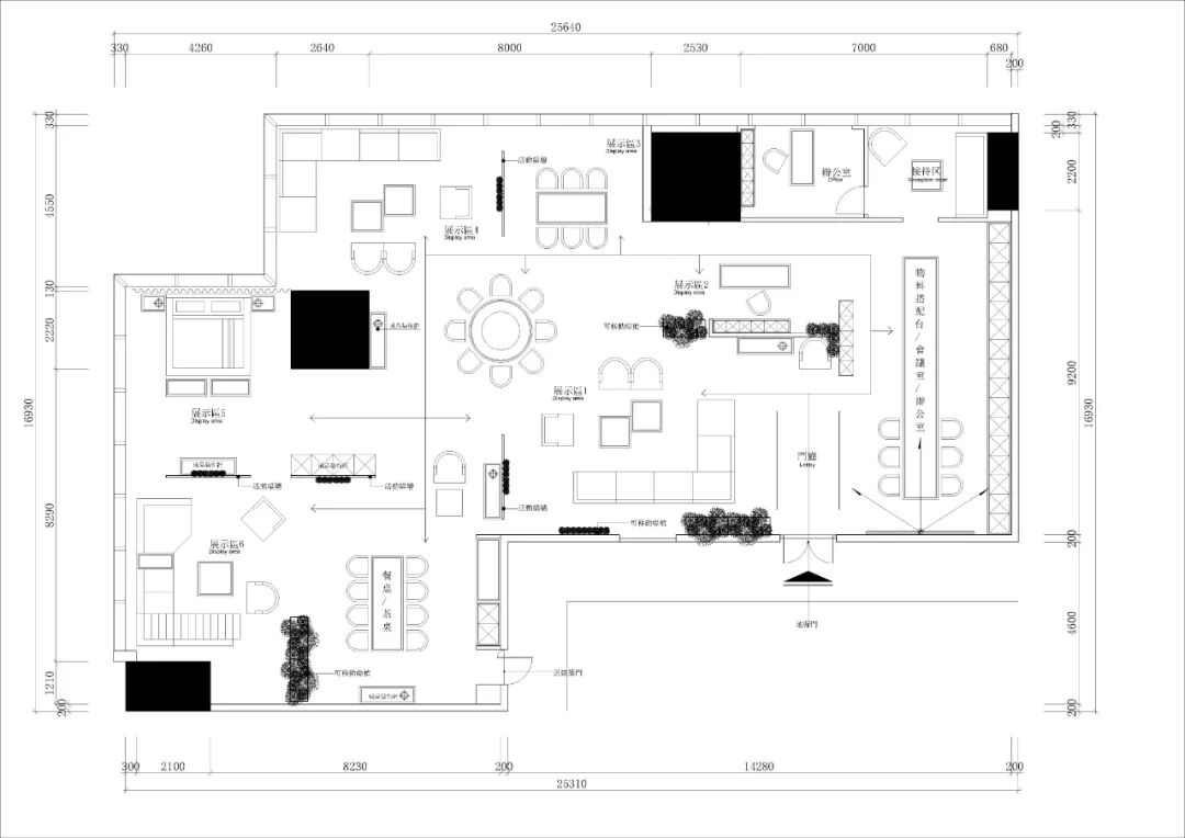
▲平面图







