2020顶峰设计奖 | 商业空间实例类银奖 -《隆泰禾》
发布时间:2021年3月23日 分类:建筑环境作品 浏览量:1182

▼
2020 顶峰设计奖获奖作品
特辑 PART 02
—
作者
机构
————

▼











一
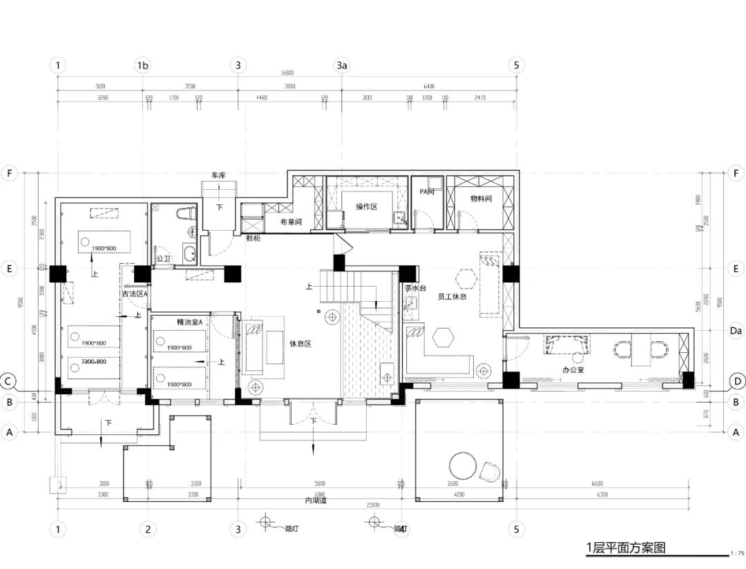
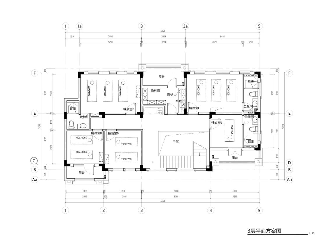
这座只有400平米的三层临湖别墅,是很多人都心生向往的地方。
我们灵活的调整每一层空间结构,让整个空间更加符合服务流程,交通性,空间的逻辑性更加顺畅合理。每一层都有其重点,地下一层临湖,兼有服务与办公功能,第二层临街,作为主要的接待区域,第三层能览尽周围的湖光山色,好的风景加持,能让整个空间语言与环境更为饱满和谐。
我们希望每个来到这个空间里的人,能尽情的享受空间里所营造的泰式风情,目光所及之处,是热带的风景,海岸边的茅草屋,丛林里的一抹深邃的绿色,是一幕潺潺的流水,是倾斜而下的暖色灯光。



▲平面图







