2020顶峰设计奖 | 住宅室内空间方案类金奖 -《温暖的家》
发布时间:2021年4月11日 分类:建筑环境作品 浏览量:1288

▼
2020 顶峰设计奖获奖作品
特辑 PART 05
—
作者
机构
————

▼






一
屋主是一位极其温柔甜美的音乐老师,有着明晰的审美喜好,喜欢现代简约和侘寂风格。她希望有一个舒适温馨但自由度和可能性都高的家。
家具带着浑润与质感,为空间带上了纯粹与隐奢。
浓郁的惬意温柔,占入整个空间 ,所有的线条干净柔和,没有奢华的装饰与侨情的设计,用纯粹与材质打动人心。
整体细腻低和的色彩,融入了一点粉色与黄铜材质,材质之间的碰撞,让视野区域显出了亮点。
温暖的单椅,提升了心灵的温度,一切以淡淡的侘寂风,流传于空间,却有着温暖的张力,以家的感情进行设计,让人文情感微妙可显。

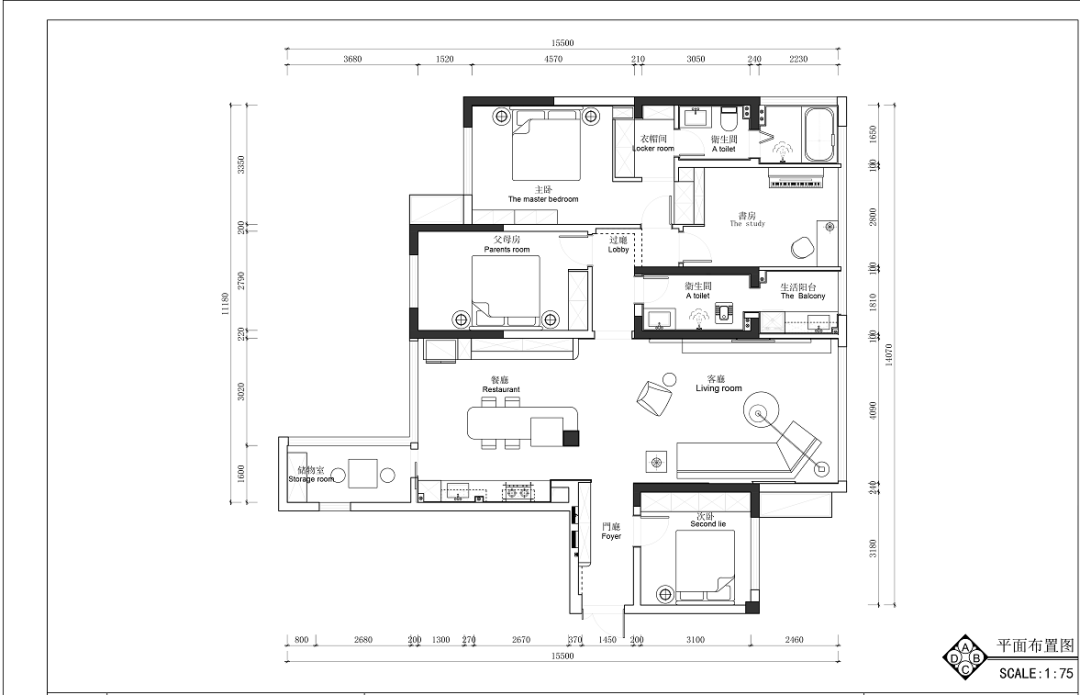
▲平面图







