2020顶峰设计奖 | 住宅室内空间方案类金奖 -《朴素的家》
发布时间:2021年4月11日 分类:建筑环境作品 浏览量:1189
HIID湖南省建筑室内设计学会发起的第四届湖南省建筑室内设计大赛--2020顶峰设计奖,为湖南的设计发声,为湖南的设计呐喊,回归设计的初心,让专业成就价值,让更加专业的设计成为核心竞争力,引导设计行业健康、科学、可持续性的发展。
2020顶峰设计奖的参赛作品数量全省14地市作品总计1196套有效作品,大赛共决出了261套获奖作品,为湖南建筑设计与空间设计行业发掘了更多优秀的新生力量。2020湖南最具年度代表性的设计作品再次脱颖而出,荣获各类单元奖项;顶峰设计奖同样对年度设计创新力产品、年度新锐建筑室内设计师、年度建筑室内设计机构、年度行业推动人物/机构予以表彰。
▼
2020 顶峰设计奖获奖作品
特辑 PART 05
—
作者
机构
————

▼










一
整体的设计概念中我们希望达到空间与人与自然的互动感,透过不同形态的方式脱离架构,让材料能延伸、光线穿透、放大空间的体验。旨在营造一种慵懒散漫的居住生活方式,惬意具有仪式感。
结合客厅餐厅的时候,空间的形态关系又发生了微妙的构造关系,入户与过道白墙不仅起到了空间指引性的效果,同时也让空间气质的构造方式发生了变化。
主卧室延续了客餐厅的手法,用形态及材质质感和色彩勾勒了空间层次结构关系解放所有硬装需求,让自然会给我们惬意的生活状态

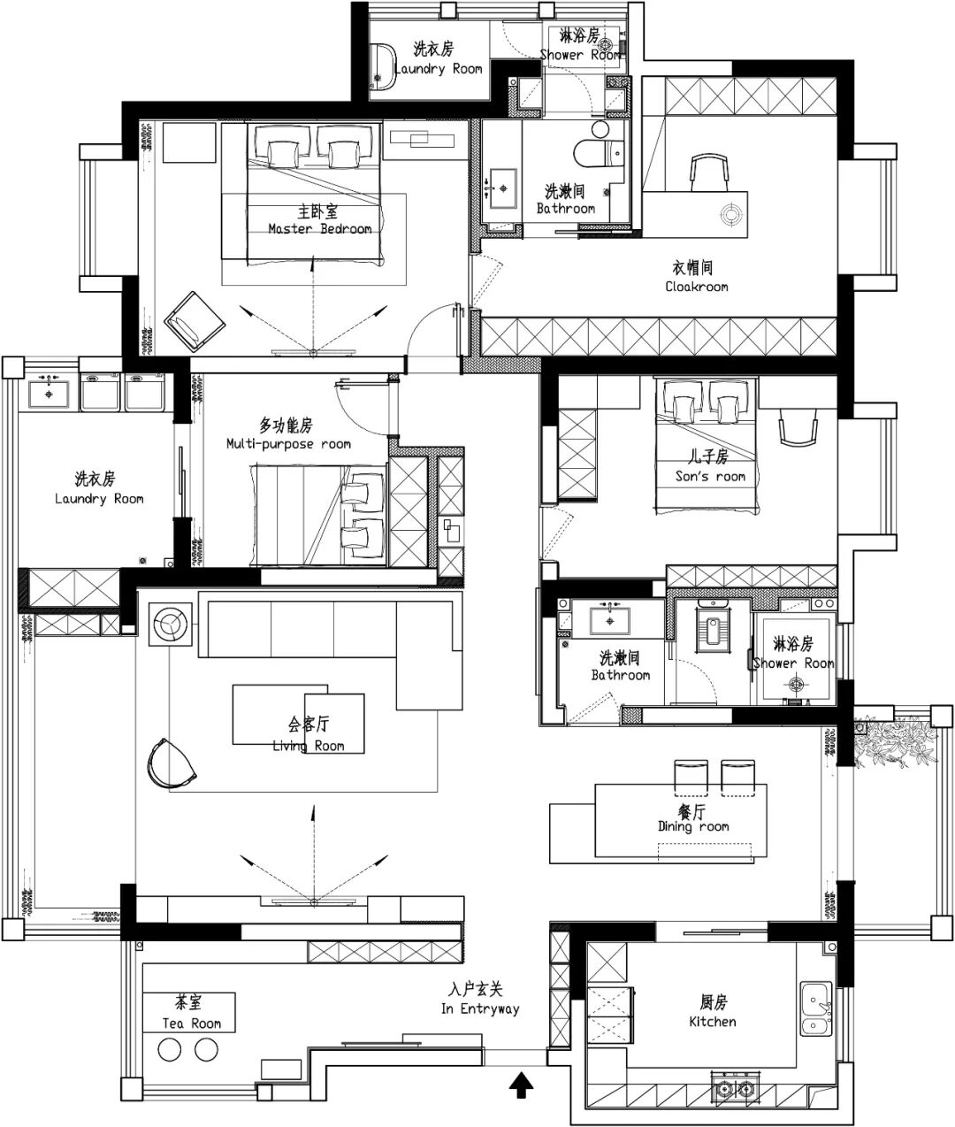
▲平面图







