2020顶峰设计奖 | 高校组创意类铜奖 -《魅力男庄》
发布时间:2021年5月22日 分类:建筑环境作品 浏览量:2053

▼
2020 顶峰设计奖获奖作品
特辑 PART 08
—
作者
院校
▼




一
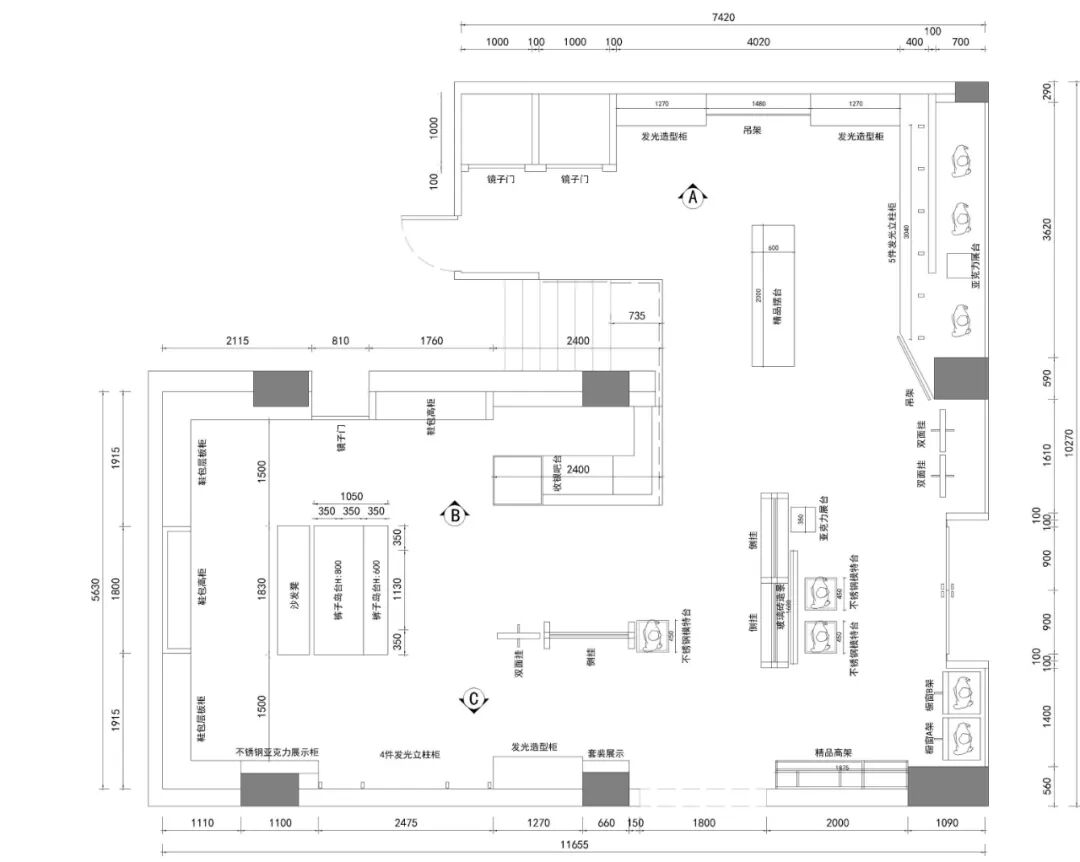
魅力男庄是一个男装展陈空间,大约119平。整体用高级沉稳的灰色体现出男性成熟而富有魅力的一面,而其中一些跳色让整体设计更富有层次感。
整体展架材质用拉丝灰钛,于组装来说更易操作,且反光材质也让空间显得轻盈不沉闷;而造型背板有用软包,有用玻璃砖则是为了丰富视觉观感提升层次感。硬装方面多用瓷砖与钢化玻来和谐整体风格。每个展陈区域都有射灯为其提供照明,在面积较大的两个区域用铝槽灯做了造型,丰富了天花的设计感。
外立面的橱窗区域用拉丝不锈钢饰面做了三角造型,下方配合上铝槽灯,用几何形丰富了外立面,体现高级感。侧面用浅网灰瓷砖上墙,这种材质花纹简约时尚,与店内的瓷砖也相呼应,不锈钢水波纹板贴在外立面,让自然光照打在上面会呈现出丰富的景象,客人会自然而然被这种材质吸引。








