2020顶峰设计奖 | 高校组创意类铜奖 -《木石魔方》
发布时间:2021年5月22日 分类:建筑环境作品 浏览量:1926

▼
2020 顶峰设计奖获奖作品
特辑 PART 08
—
作者
院校
▼








一
本方案设计着重强调共享空间的氛围营造,通过几个几何体块之间的搭接咬合,形成了一个体块感强烈的简洁建筑外形。通过玻璃幕墙、石材幕墙以及木纹幕墙的穿插既满足建筑的通风采光需求又构建了形态虚实的对比。在内部功能布局上,通过休闲、娱乐、办公区域的划分,来满足城市快节奏下公共室间中不同人群的行为及心理需要,与木石居,形若魔方。
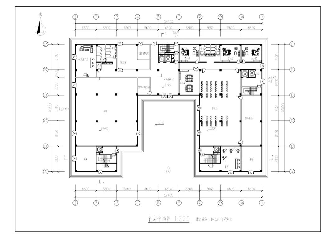
首层平面:建筑的首层平面南面为办公楼的主入口,超市和营业厅分布在东西两侧,南侧和东西两侧的建筑围合形成了一个较大的办公楼入口空间。在南侧和西侧沿街面还设有商业店铺,吸引人流,提高了建筑的商业氛围。
二层平面:二层的功能是健身房、餐厅、咖啡厅等,餐厅和健身房都拥有南向阳光,同时还设有室外平台,具有良好的视觉效果。
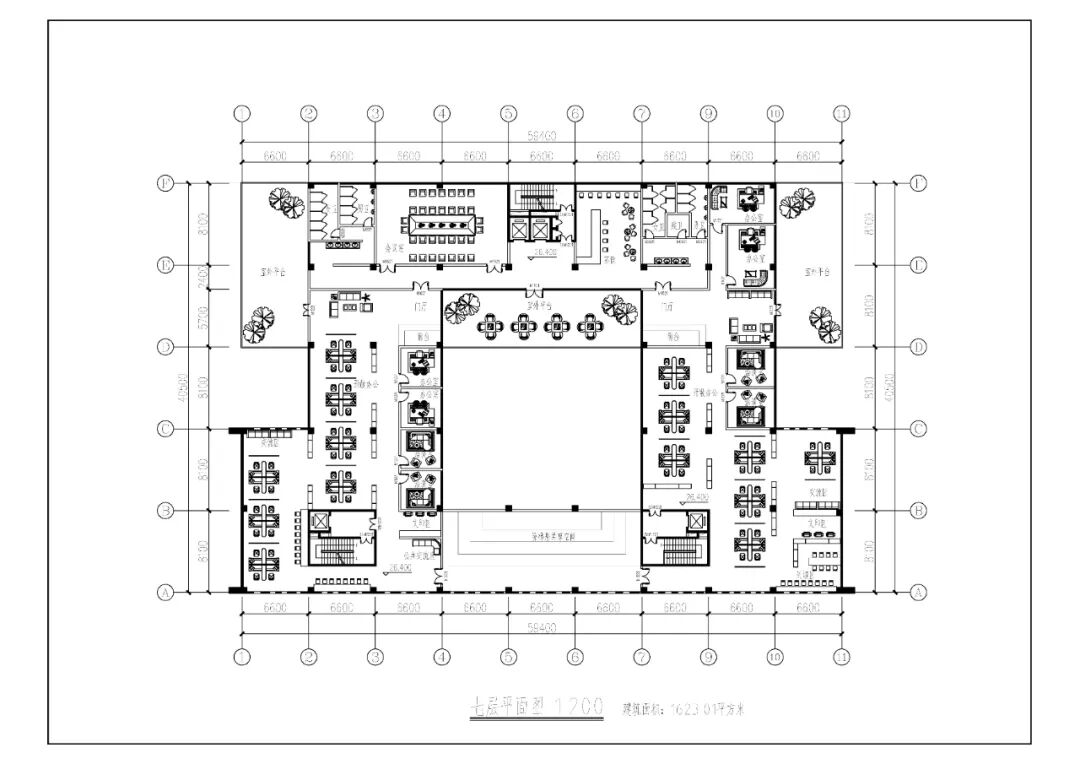
三层平面:三层以上都是办公空间的设置,办公空间设计的最大特点是人性化、灵活和生态化,根据使用者的特点,与室外平台相结合,内部空间布置灵活,充分考虑了办公人员的工作特点和工作氛围。









