东南大学建筑学院2020建筑学本科二年级设计课程|院宅-空间与生活
发布时间:2021年2月23日 分类:课程设计 浏览量:3425
课程名称:院宅-空间与生活
课题类型:东南大学建筑学本科二年级设计课程
指导教师:朱雷、史永高、蔡凯臻、陈秋光、 李向锋 、陈晓扬、焦键、韩晓峰、顾凯

场地平面







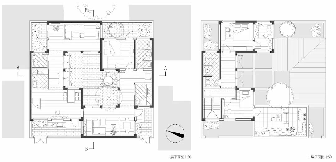
评介:在现场复杂生动的生活环境中,敏锐地捕捉到两个特征:一是传统内院的完整性,历经加建拆分仍有遗留;二是外部杂院看似随意的加建,形成犬牙交错的边界及空间关系。设计重新定位于三代居的单院宅,但保留与外部杂院及水井的呼应,在完整的院墙限定中引入对角线的发散关系:既回应了现实环境,又满足当代居住所需的丰富性和差异性。由此,方案底层最大化拓展了边界空间,围绕院墙形成丰富多样且连续展开的生活场景;上层则收缩为相对简明的形体结构,呼应周边肌理;上下层通过门廊、楼梯、餐厅等的高度错动,形成相互关联的整体。
02 合院居-青年居:B地块
学生:胡昳
指导教师:焦键





评介:方案保留了场地原有的三开间空间格局,南北体量连通并置入两重庭院形成的南北向的线性空间,同时保证了内部流线的私密性和空间体验的丰富性。对材质、尺度和光线处理细腻,公共楼梯和入口高效解决了垂直交通及5家青年住户的入户问题,与街道呈现了有趣的平行关系,成为城市公共空间到内部居住单元的自然过渡;临街格栅的处理形成了既整体又隐约流动的界面。







评介:在对原居住状况进行充分考现研究的基础上,试图通过有序的空间组织,对一家两代人比邻而居、分而不离的生活状态做出诠释。充分尊重原有场地中的既有要素,以院落为核心,构建环院而居的内向空间格局;以模数为尺度控制,构建体块连接和咬合关系。值得肯定的是,以上空间操作均同步考虑了不同年龄人群的日常生活需求,并对生活细节进行相应的细部设计。方案总体上展示出较强的逻辑起点,清晰的设计过程和完整的图纸表达。
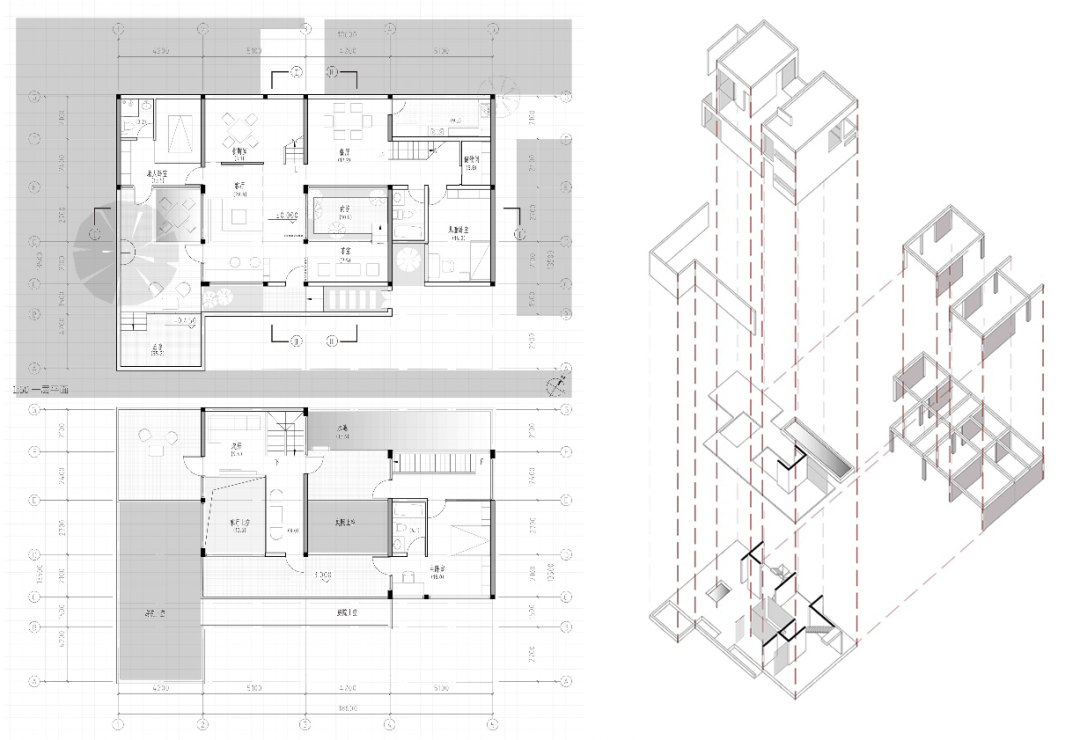
04 叠院居-生活+工坊:D地块
学生:夏天
指导教师:蔡凯臻








评介:D宅现状以院落与北侧街道相隔,西、南两宅为艺术家工作室和另一私宅。院内梧桐参天,竹子遍布,因两户难以共享,无人打理,几近荒废。设计基于现状空间解析,延续艺术家工作室生活状态,艺术家与学徒生活区分列,工作室设于中心,其余皆作庭院及平台,强化院落共享与拓展,注重空间分化与联结。连续屋顶整合一二层嵌套体量,契合街道尺度,且精心组织室内家具和环境要素,塑造叠院居空间特质及生活场景,并完整呈现设计思考。
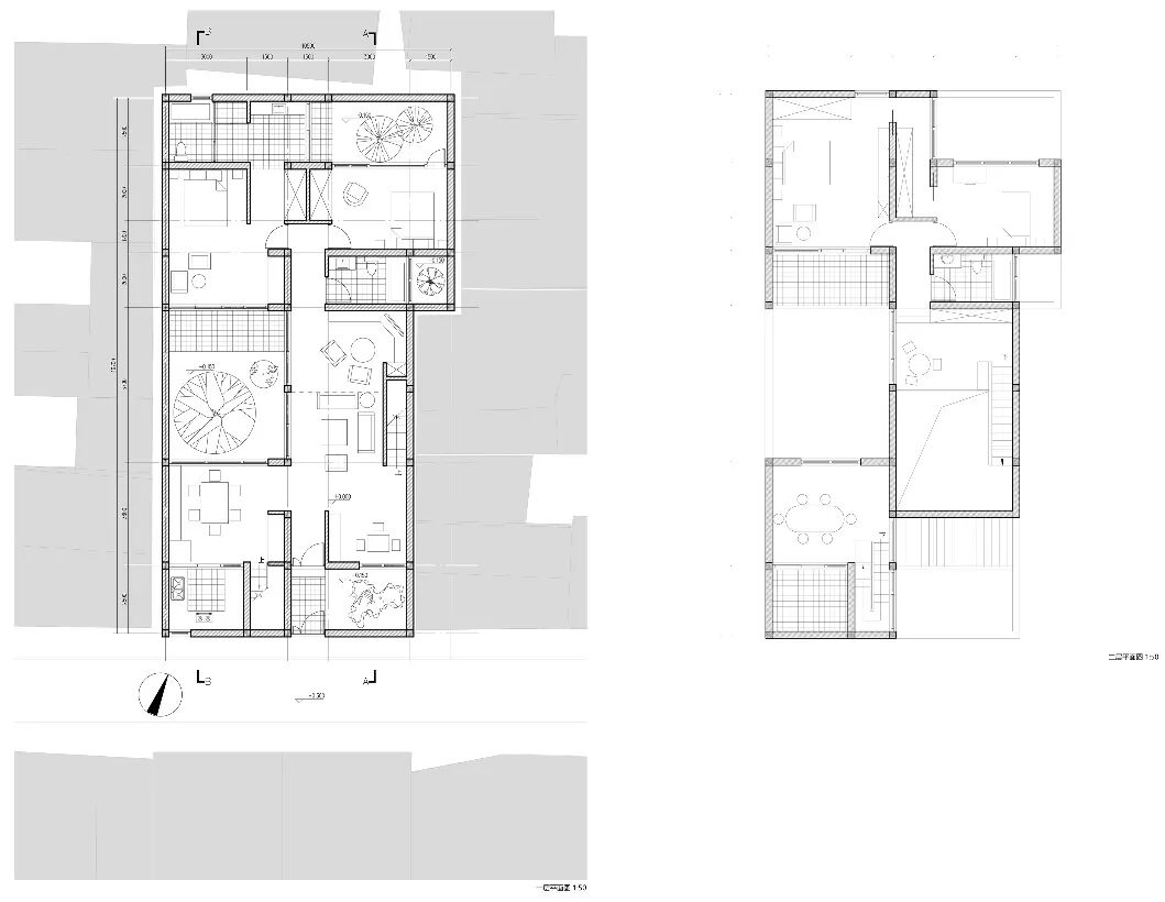
01院旁檐下-三世同堂:B地块
学生:肖敏荣
指导教师:史永高








评介:注意到周边尺度和屋顶形式,并予以恰当回应,从而在通常的对场地环境的抽象理解的基础上更进一步。空间本身尺度和使用关系得当,且与结构体系相恰,从而共同建立了较好的建筑秩序。生活庭院与服务性庭院的位置、朝向、尺度处理适宜,于都市中求得生活的自然趣味,在三面围合的场地中实现空间均好性。对屋顶结构和构造、设备系统、主要空间场景有较为深入的研究和设计。
02暖居:E地块
学生:邱子仪
指导教师:陈秋光






评介:以问题类型(场地、功能、结构)做为设计的出发点,结合院宅的特定建筑类型(空间和生活)进行设计练习。以设计问题的解决和设计方法的掌握为设计目标。作业强化设计练习的过程性推进,把握空间与生活的主线,突出空间与结构组织、实体空间与虚体空间(宅与院)的相互关系。通过对案例一-苏州平江路小院,案例二-莱特的罗比住宅,案例三-路易斯·康的印度经管院的学习研究,归纳出从形式到生活,从生活到形式的空间路径以及层构成,核心要素与空间环绕等的设计手法。结合具体的场地特点,利用红线创造In-between的空间退让和行进序列,在建筑实体中以院、庭、井的虚体组织,解决私密性、朝向、采光、通风等生活舒适度的要求和景观的创造。结构有序的墙体布局(横墙承重)带来了有序的空间组织及水平与垂直向的空间流动,立面处理呼应其背后的结构逻辑。设计完成度满足十六周长作业的深度要求。
03 天井与气候:B地块
学生:张思褀
指导教师:陈晓扬







评介:精读案例巴瓦自宅,其有感于多重小天井对于采光通风及内部氛围的关键作用,同时泛读相关的多天井案例,初步了解不同气候区天井的作用。以多重天井概念启动该设计,发挥小天井(蟹眼天井)的遮阳、采光和通风作用。并兼顾夏热冬冷气候特征,店宅之间置入有利于冬季日照的放大天井。各天井错动布置,形体南低北高,力图争取适应本场地的日照和通风条件,同时形体上也融入街区。内部空间氛围因不同天井沿交通动线展开而层次较丰富。
01 谷隐:C地块
学生:李雨杭
指导教师:韩晓峰







评介:将园林意境、物质元素和空间组织的原理,通过恰当的设计转译,应用于一座当代日常居住空间设计之中,是本设计做出的探索。作者首先对传统的园林的景观要素、游观体验方式等重要的基础原理进行研学,总结出关于园林性的三点认知:山水意境、曲折的空间序列、丰富的景观层次。园宅的设计过程中,一方面对刚性的现代居住功能做出回应,另一方面则需要结合诗意的想象和情怀为略显乏味的房间搭建起与室外院落中的自然景观之间园林性的体验。本设计中设计者引入的错层的水平空间布局、曲折回绕的游廊、层叠丰富的空间层次等多种景与物的互动营造方法,使得本设计在简洁现代的体量下呈现出一定的“园林性”住居空间的意向。扩展观之,课题背后蕴含的传统园林法与当代居住空间的嫁接或转译或融合,是很有价值的探索。
















