2020顶峰设计奖 | 商业空间实例类铜奖 -《拾光之城》
发布时间:2021年3月23日 分类:建筑环境作品 浏览量:1171

▼
2020 顶峰设计奖获奖作品
特辑 PART 02
—
作者
机构
————

▼













一
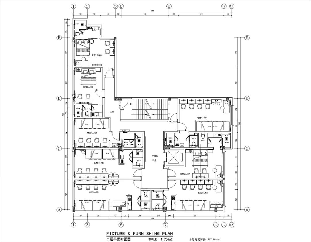
酒店定位为年轻的,向往新生事物的时尚消费人群。酒店集合了一整层作为电竞游戏房间,整体概念上以“集 合 互 联 网 、 社 交 网 、 科 技 智 能 化 等 多 维 度 服 务 为 一 体 的 维 度 空 间 ”为核心出发点。
通过对当代、未来的思考,思考“时光”的表达方式。将时光,映射,记忆,科技,未来运用实体的手法表达出来,让空间讲故事。
“以时光之名,还岁月本色”。
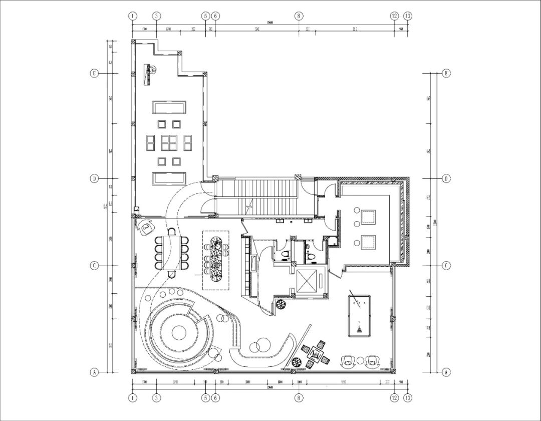
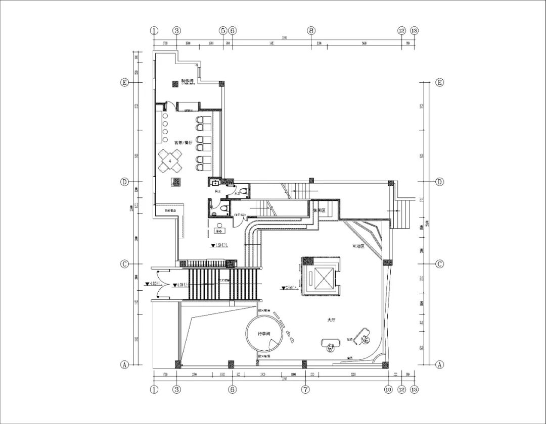
“拾一”的名字由来也是从“时间”的概念里衍生出来的,意味着十一点,刚好是休息的时间的概念。从品牌到空间概念,均以“时光”为主线索,因此我们在大厅的设置上,是以一个多时空交集空间为概念而生,接待大厅即是众多不同维度时空的汇聚,不管是光的入口,还是向上的红色通道,还是时空穿梭机(电梯井),还是漫天星辰。在这里游客可以自由的选择去到哪个时光通道。“拾光之城”由此而来。
空间里蔓延了时光的概念,以及日月星辰,宇宙,时空,穿越等元素,随时准备好接驾停泊的宇宙飞船(圆形行李间)。



▲平面图







