2020顶峰设计奖 | 餐饮空间方案类金奖 -《素归》
发布时间:2021年3月27日 分类:建筑环境作品 浏览量:1670

▼
2020 顶峰设计奖获奖作品
特辑 PART 02
—
作者
机构
————

▼









一
素归——业主笑着说意思也就是“下班就能速速回家。”
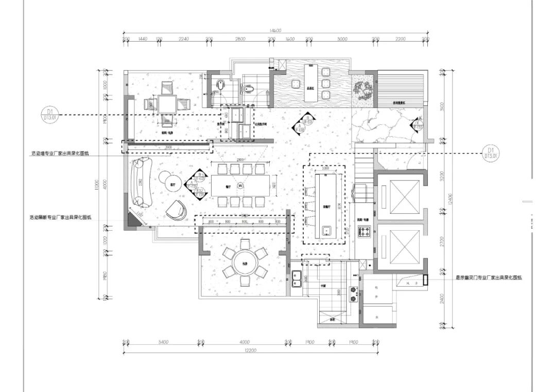
机缘巧合下结识此项目业主, 初步沟通后理念与业主非常相符。得知项目位于住宅楼顶层平层,我们需要将所有可拆除墙体拆除,规划成私人餐饮空间。再楼板开口,制作楼梯可上至屋顶花园。
整体风格归为极简北欧,运用大量白色及国外品牌的实木家具。建筑面积140㎡的空间,将隔断制作成可活动,使空间更加灵活性。景观玻璃房,顶部开些许圆孔,让日光通过圆孔透入室内,人在室内于时间的变化,可见光影的穿梭及迁移。楼梯灵感来源于钢琴键,黑白琴键,绯色迷梦,于旋律的起止间,旖旎着轻舞。

▲平面图







