2020顶峰设计奖 | 住宅室内空间方案类银奖 -《暗橙复式极简空间》
发布时间:2021年4月15日 分类:建筑环境作品 浏览量:1061

▼
2020 顶峰设计奖获奖作品
特辑 PART 05
—
作者
机构
————

▼





一
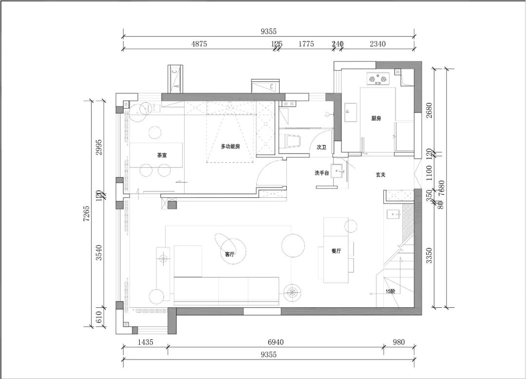
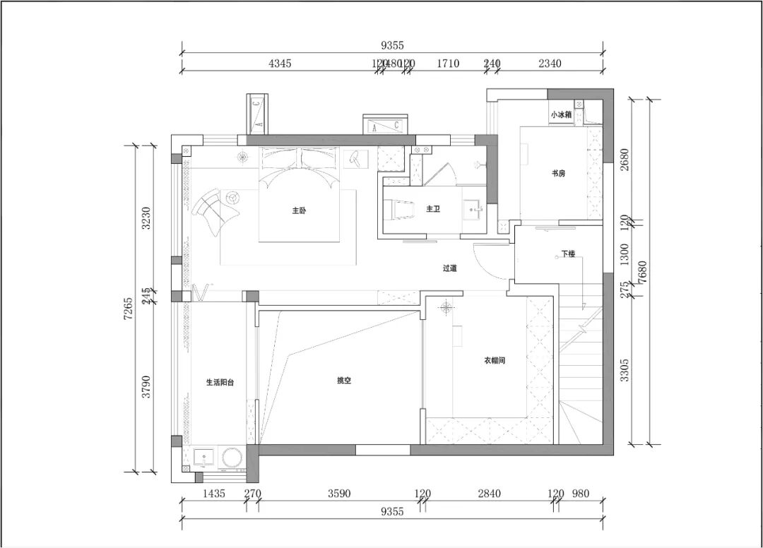
本案是一个复式楼设计,业主为职场精英人士,对房屋的需求不仅是作为生活空间也要有能接待自己的客户的商务功能。
1.一楼为公共空间,集日常生活以及会客;二楼为独立的私人空间,动静空间恰好分隔
2.主卧扩出去连接阳台,让主卧面积更宽敞舒适,衣帽架作为主卧一部分成就了一个大套间
3.茶室与次卧结合为一个多功能房
4.楼梯下方做酒吧台,实现业主的调酒师梦
不止于风格,更忠于品质。
意式不止是一种风格,更多的是展示其品质。以最简洁的设计手法来打造奢华气派,造型上的简洁是为了赋予材质上的奢华。简约线条在讲述真正的永恒经典,脱离一切浮华和不实用。在材料的选择上以优质的石材以及实木为主。胡桃木与石材的拼接,毛石展现出最原始的神态;平滑与粗糙的对比,看似冰冷的石材配上壁炉与暖光灯源以来达到品质空间但不缺失家的温暖。


▲平面图







