2020顶峰设计奖 | 住宅室内空间方案类银奖 -《莫知》
发布时间:2021年4月15日 分类:建筑环境作品 浏览量:1010

▼
2020 顶峰设计奖获奖作品
特辑 PART 05
—
作者
机构
————

▼









一
家可以是尽情表达自己地方,不一定有特定的风格倾向,兼容不同文化,一切只随自己的感觉去陈设。喜欢那些能让人想起生命中的某个时刻触动回忆的物品,在游厉中发现的好物,并把他们带回自己的世界,经过时间的打磨,空间中的各个组成部分会越发和谐在矛盾和冲突中,相互包容。
金属的光晕,石材的细微变化,一同唤起居住者的感官体验。不同层次的灰色相互搭配,营造出开敞低调舒适的氛围,表面上看不到多余的物品,实则都藏在设计之中。
一个空间中哪些是最珍贵的,阳光,清风,当然有美丽的人,还有从前的点点滴滴。人在成长的过程中总是希望可以做到尽善尽美,但很多时候,那个不完美的自己才成全了完整的自己。


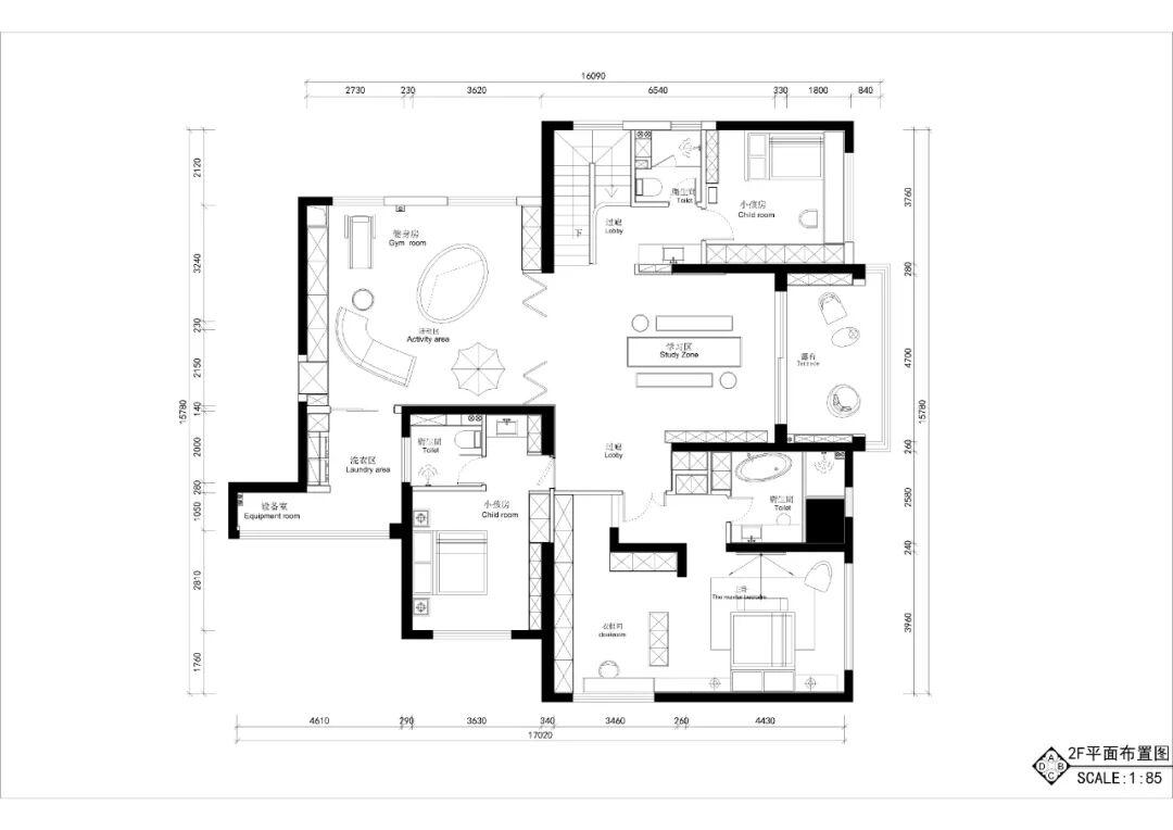
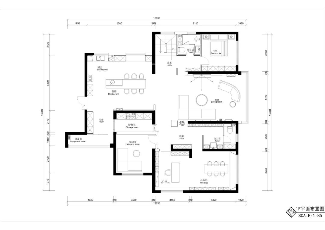
▲平面图







