2020顶峰设计奖 | 住宅室内空间方案类银奖 -《诗酒 · 趁年华》
发布时间:2021年4月15日 分类:建筑环境作品 浏览量:1074

▼
2020 顶峰设计奖获奖作品
特辑 PART 05
—
作者
机构
————

▼









一
亲人已远去,爱却会延续
祖辈与父辈之间,父辈与子辈之间,亲情是延续的。
希望时间能慢点,再慢点,希望空间能拉近,再拉近,陪着爷爷在摇椅旁,什么也不做,就这样,静静地听他说话,能让他看到他疼爱的孙女的脸上的笑容。
总还会有一些物件,会让我们回想起已逝的爷爷——摇椅---每次凝望着它,爷爷的音容笑貌就宛在眼前,会让我们忆起儿时的快乐时光。
爷爷坐的那把摇椅,能带来一丝幻觉,仿佛爷爷还在家里,还坐在那把大大的椅子上,轻轻地摇晃着……
虽然家人间的关爱看不见,摸不着。
却永远如摇椅,默默守护着我们,融入在家的每个空间里。
同时为我们敲响了内心深处爱的警钟:
“树欲静而风不止,子欲养而亲不待” ……

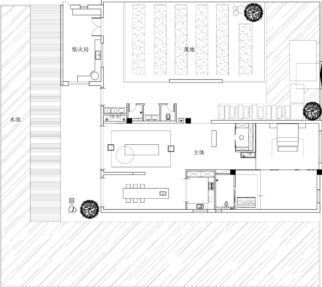
▲平面图







