北京林业大学园林学院2018级梁希设计班三年级风景园林建筑设计——元大都遗址公园惠新西街段社区活动中心

发布时间:2021年4月28日 分类:课程设计 浏览量:2279

课程简介
2020年北京林业大学园林学院18级梁希设计班三年级风景园林建筑设计——元大都遗址公园惠新西街段社区活动中心。场地位于元大都遗址公园惠新西街段,小月河北侧。地块位于地铁站出口西侧,原址是天利宏市场及西侧的停车场。场地北侧临北土城东路辅路,南侧临小月河河岸,南北两侧高差近4米。

地段的菜市场是周边居民买菜、修补等日常生活的重要场所。同时其东侧是地铁出入口,交通方便。场地北侧临机动车路。小月河南侧作为遗址公园成为周围居民休闲活动的重要场所。地段现有建筑功能过于单一,同时一定程度上也切断了北土城东路与河流在景观上的连续。从现状看小月河北侧与南侧相比景观较为单一,仅仅是建筑与河流之间的通道。因此希望通过社区中心的设计丰富该地段城市生活,整理场地景观。

通过该项目设计使其成为提升场所品质的积极因素。建筑形式要求体现出风景建筑特点,体形灵活,格调明快。结构形式为框架结构,处理好围护部件与结构框架的关系。平面分区合理,具有良好的流线组织和空间关系。

设计周期为9周,18级梁希设计班同学通过前期调研、场地现状模型制作、案例学习与设计策略提出和方案深化,完成建模、图纸和方案汇报。

评图过程简介
本次评图通过腾讯会议线上评图的方式经行。评图嘉宾包括北京林业大学园林学院教授,园林建筑教研室主任董璁、清华大学建筑设计研究院三院副院长兼深圳分院院长莫修权、北京筑都方圆工程设计有限公司总建筑师张亚轩和北方工业大学建筑与艺术学院副教授,建筑系主任马欣。最终评图先由郦大方老师介绍设计题目,接着每位同学依次做6分钟的介绍,评委嘉宾分别经行点评,从对场地的理解、设计立意切入、建筑功能布局、空间与景观设计能力、方案深化程度与表达逻辑性清晰性等方面提出了中肯的建议,也对三年级风景园林专业同学们在大三上学期一个学期的时间能完成的丰厚的成果表示充分肯定,并在最后对同学们提出对于未来的建议与鼓励。

作业展示
01
蹇汶辰
图片
图片
图片
图片
图片
图片
图片
设计说明:本方案以两个相对独立建筑体块作为基础,分别承担社区活动中心和菜市场的功能。在两个体块中间用圆形弧墙进行穿插,围合出半室外的中心景观空间,将两个体块连接为整体,将南北空间和交通联系起来,同时引导视线,充分利用遗址公园的现有景观。建筑依靠中心弧墙和西侧弧墙形成的贯穿空间引导室内交通,通过建筑外墙延申出的片墙和中心弧墙引导建筑外部交通,同时将内外游线和空间串联起来,打破建筑外墙对内外空间的限制,创造出丰富有趣的空间游览体验。评委点评:河道关系没太利用,河道滨河关系与游线组织不足,把建筑与河道滨河体验,游人的引入提高一点;灰空间背混凝土挡住了,可以有其他考虑;中间圆形空间较好,圆弧片墙空间如果能和建筑有机结合更好,现在只是穿插在内部,没有结合,人在其中对弧形的感受不大,加法减法可以有更好的推敲。

02
孙千翔
图片
图片
图片
图片
图片
图片
设计说明:设计以拉近城市与河流关系为出发点,使建筑由城市与河流之间的阻断关系转化为积极的引导关系,充分结合地形,采取悬挑探出的态势最大限度使城市建筑融入河流景观,并采取中部贯通的方式吸引城市界面与滨河空间发生互动,打破城市与河流间的屏障。同时结合场地高差布置室内空间,使得内部空间连贯并具备最佳观赏面,在满足设计要求的同时增加空间的通透性。建筑3层采用空间桁架结构,采用1/12高跨比布置巨柱,柱间采用人字形斜腹桁架支撑。评委点评:是非常大胆很有特色的一个设计,在城市界面消解了尺度和体量感,建筑北侧打碎而南侧连续,把整个沿河空间全让了出来,室外空间比较有新意,也做了很多结构构造上的尝试。但室内空间过于复杂,虽然增加了空间趣味性但需要通过大量的高差实现,外立面工业感过强、比较粗粝。立面100米长全用桁架和玻璃,尺度需再考虑。

03
魏红叶
图片
设计说明:本次课程设计从场地的机遇与挑战出发,希望打造一个充满活力的社区中心、城市舞台。设计中尝试通过建筑形态的塑造,打破大体量建筑的局限性,恢复城市与河流的连接,搭建出一个可以游赏的体块空间结构,以形成丰富的灰空间,在满足建筑内部功能的同时,激发游人的户外活动,为场地注入活力。三条东西向的体块结合台地消解场地高差,同时打开东西向视线。在此基础上打通南北向空间,形成从城市到小月河的景观视线廊道,吸引人们进入场地。结合使用功能对体块进行合并与切割,增加南北交通连廊。并通过架空滨水侧的建筑体块,结合西侧的喷泉剧场设计,在邻水界面形成开放的空间态度以及丰富的活动场地。评委点评:前期分析充分,用场地问题指导设计,逻辑推演贯穿设计始终,值得肯定。建筑体块之间围合出了丰富的室外活动空间,结合灰空间设计打通一条南北向贯穿的廊道,形成了有趣的空间体验。不足之处在于立面表达欠佳。室内空间过于独立,缺少统一的门厅空间。东西向的切割方式值得再深入考虑。

04
李超吾
图片
设计说明:设计着力于解决原建筑南北向割裂河岸与街道、东西向割裂地铁站与公园的问题,提升场地的可达性。以最集约的方式最小化建筑占地面积,留出大量空间给室外活动。并且通过加减穿插体块的方式,在原场地置入一系列有虚有实的方盒,围绕大大小小的方盒组织一系列有序的日常活动,让社区活动中心焕发新的活力。评委点评:该设计“方盒”这一概念很强,功能上也很集约,建筑外形、室内空间和下沉广场的设计都还不错,但是最左侧的方盒部分的设计太过拘束,不要完全被概念框住,该放松的地方应该放松处理。同时,与南侧河流相比,建筑尺度略大,可以适当调整。动画部分可以多种绿化,也会更有生机和活力。同时,对于建筑的技术指标规范要加以重视。

05
邓玲艺
图片
图片
图片
图片
设计说明:设计以激活菜市场本身活力为契机,纳入河岸和绿地的景观,营造良好的城市界面和河流界面,尽可能地延续元大都遗址公园滨河绿地活动空间,打造一个具有观赏游览性质的趣味市场与配套有相关活动链的完备的社区开放空间,实现沟通人与河流、加强人与场地联系的作用。“折”体现在两个方面,(1)建筑采用折板的手法(2)景观采用折线的形式处理高差,插入曲折的观景桥,使景观与建筑更好地相互交流。评委点评:建筑非常日常化,比较符合菜市场社区中心的气质;前期分析做的很好,从实际生活出发;核心是建筑对于街道的退让,街道的放大吸引市民进入社区活动中心;功能设置比较扎实,菜市场和社区活动中心分离的设计符合实际情况。但建筑南侧对于小月河的遮挡比较严重,削弱了小月河的可见性和可达性;临河的建筑立面通高的柱廊过于宏大,和小月河亲切怡人的空间气氛不符;建议将庭院和河道的关联性进一步加强。

06
孙皓晨
图片
图片
设计说明: 结合原场地的地形,通过线性的组织进行逐步的分段、变形、增减体块。创造出富有变化的空间体验。将菜市场、活动中心和餐厅等功能借由此种形式进行结合,良好的分布在建筑中,重新激发场地的活力。评委点评:空间感还可以,室外空间又照顾了北土城东路的空间又照顾了小月河;但是对于室内外空间的分析表达需要加强、使用人群功能之间的关系需要更加深入的思考;功能使用过于强调流线空间,交通流线上要多考虑室内外人的交互。表达过于强调形式逻辑,表达不清楚,需要更成熟的思考。最后成果呈现比较舒服,屋顶平台想法比较好;但是追求形式多于可实现性,实用性;很多功能空间使用效果不好,有些房间进深面宽比例以及L型的活动室等等不合理。将视线交流与开敞感,通过玻璃来实现,能耗过高,结构上也不好实现。

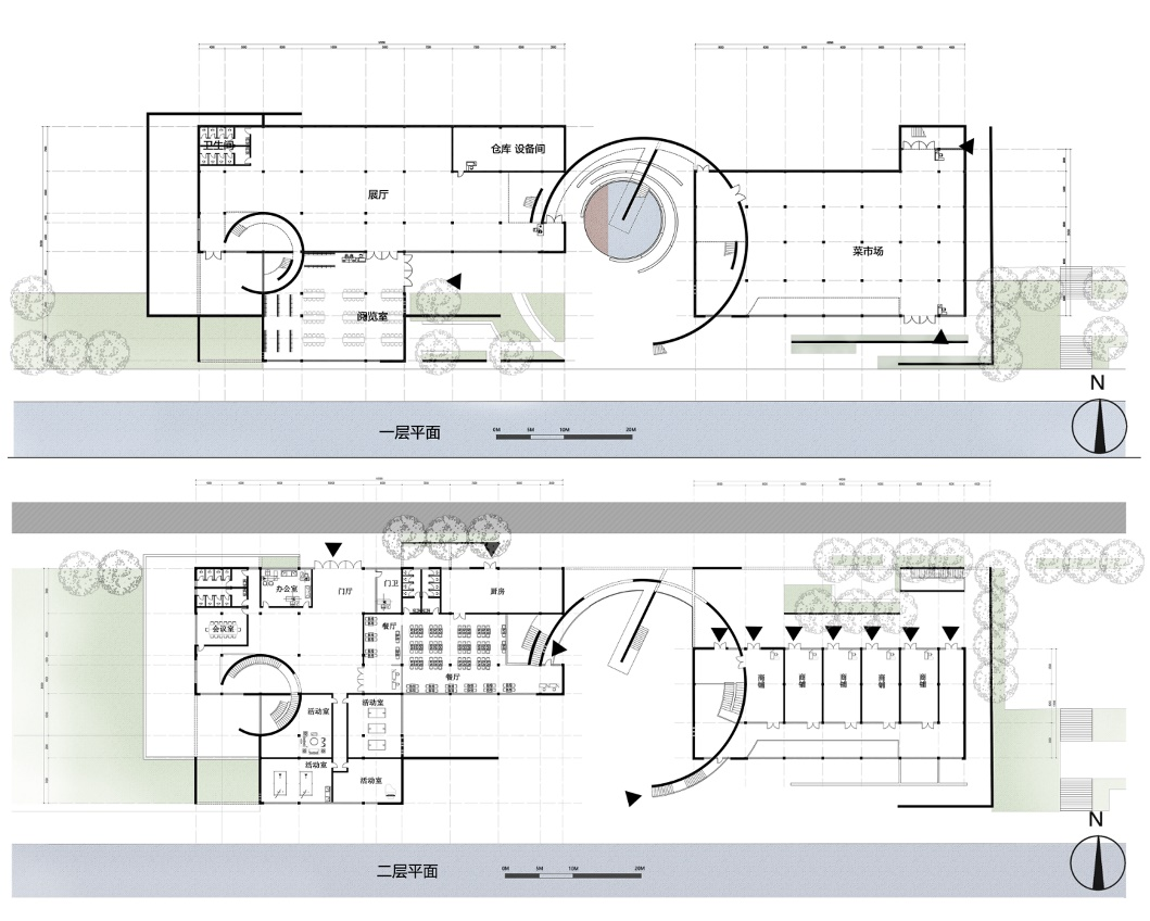
07
赵秉萱
图片
图片
图片
图片
设计说明:河畔与晚风,意在通过舒展自然的建筑拉近人们与河畔之间的关系。建筑包括两个基本的结构体:容纳了菜市场、商铺以及餐厅的商业部分,以及用以社区活动以及展示的社区展厅为主的便民服务中心。两部分通过一条空中走廊相连,中部留下坡道连通北侧人行道与河岸之间的关系,两侧的景观楼梯可以在视线上达到不断的变化,从河岸景观与建筑景观中不断转变,具有一定的趣味。从三个方向围合出一个拥有水池与草坪的内庭院,活跃建筑两部分序列之间的气氛。。建筑以搪瓷金属面板为主要材料,南侧多为大面积的双层玻璃幕墙,具有良好的景观面,同时可以与河道产生对话。评委点评:建筑的整体造型很好,比较成熟。两边的体块考虑不同了建筑功能的性格。但需要注意一些小的细节,比如卫生间的尺度,以及在该尺度的建筑中应配有电梯自动扶梯等;以及图面上缺少树,树可以使建筑体量消隐,更好融入景观环境。

08
段禹同
图片
图片
图片
图片
设计说明:在云端  设计场地位于北土城东路南侧小月河北侧,是城市道路与河岸景观的交接点,旨在营造一个轻松自在,变化丰富,无分内外的建筑空间。建筑共有四层,地上三层,地下一层。东侧布置菜市场——餐厅功能体块,餐厅结合观景平台,形成虚实交换。西侧布置活动中心——展厅功能体块。通过交通组织与空间组织在中部中庭形成空间的融合与转换。墙体表皮采用白色清水混凝土材质。该建筑以顶、立面开洞的方式引入光影营造无序氛围,结合建筑内部空间布置形成有序的空间,外环境墙体嵌入建筑体块,在内部形成通高空间,强化空间的可变与丰富。使原有功能单一,与环境联系较差的空间环境转变为将城市与风景相互融合的热闹的城市社区综合体,无分内外,自成风景。

评委点评:前期对于场地的调研非常充分,建筑从宏观到微观分析较好,对建筑立面有较多的刻画,营造了较为丰富的内外空间。但从问题—分析—形体推敲有所跳跃,可以更大胆的打破建筑,建筑四层体量较大,与前期分析较为不符,外立面圆洞尺寸需要再把握,对社区活动中心的功能、采光问题可以进一步推敲。

09
孟何乔
图片
图片
图片
设计说明:该设计充分利用地形高差,建筑二层与道路标高齐平,一层与河道标高齐平,东、西两个建筑体块嵌入到场地中,方便周边中老年人的使用。同时,两个建筑体块匹配了两种相对独立的功能,分别是社区活动和日常购物。两个建筑体块之间形成灰空间,打通了城市道路与河道的关系,方便人们聚集活动,同时解决高差的楼梯、坡道也延申到室内,作为室内交通空间。采用横向线条的金属板外表皮、半室外的走廊和曲面屋顶增强了建筑的整体性。建筑造型、室内空间和外环境设计都采用流线型的设计语言,旨在将建筑与道路、河道、地铁站、公园、周边居民区的关系激活,同时弧形墙体创造了丰富的室内外空间变化,解决了原有场地中河道与街道割裂,公园与建筑分离的问题。评委点评:流线型建筑的造型很独特、别致,中通空间的趋势和方向恰当,空间类型丰富且舒适。前期分析较为全面,东、西两个建筑体块匹配了两种相对独立的功能,方便使用。河道、人行道、红线的表达欠缺,建筑外表皮金属板的尺度与建筑体量搭配欠妥,异形方案的形象生成逻辑可以与线型公园、河道的分析相结合。

10
胡思玥
图片
设计说明:根据现有场地存在的问题和需求,该设计方案提出了“可达性良好、功能性齐全、连通性改善”的设计目标,希望打造一个亲切有温度、轻量不张扬的社区中心。建筑形态表现为由一轻薄的横向扁块串联一序列错落的竖向方块。立面材质主要为清水混凝土和玻璃,间以金属材质打破沉闷。通过表皮凹凸增强体块感,又通过虚实安排削弱整体厚重感、同时达成南北视线的通透。平面上景观台阶成为内连外通的交通中心;根据便利性优先布置菜市场、日用品商铺等功能区,根据景观性优先布置餐厅、展厅、活动中心等功能区。外环境设计主要集中在临河,与建筑互动的同时,增强河道立面的可观性,适当后退为东西交通提供了便利。评委点评:南北方向的体量消减比较成功,从小月河与街道层面来说都没有形成压迫感比较强烈的空间。除了交通可达性可以思考其他层面南北方向的交流,功能组织与形体的逻辑关系应当加强。考虑到的内容很多,结果呈现总体还是比较舒服的体块构成关系,包括在沿河层面的尺度推敲。交通空间和辅助空间的细节需要深化,除了面向河道的开窗,跟环境的交流可以更深入地设计。

11
周越
图片
图片
图片
设计说明:本次设计主要落点于社区活动中心的改造,而我此次的设计重点立足于重建人与河的良性关系。我以“桥”这一定义为引,将建筑看成是连接路和河的特殊空间。保留原场地错层的空间利用方式,以动线为线索对空间先进行竖向推演。与以往有些不同,此次设计先从竖向开始,再到平面进行连接。将推演出的各个竖向单体根据功能进行排列延展后,进行横向连接。然后用同样的手法对外表皮与外部环境进行处理。经过处理后,整体形成了以纵向贯穿为主,横向连接为辅的设计空间。所以我应用音阶这一极具秩序美的意向来形容此次设计,这个建筑群就像和弦,在河流的谱上弹奏。评委点评:整体方案深度、完成度高,专业技能不错,逻辑生成和推演做的不错,电梯和交通的考虑也有一定深度,红线外河边做了几个关联的小筑,更好的表达了亲水感。南北方向切分的方式沟通河和路,有点像切片面包,思路挺好,但是实际上东边三个单位还是一个完整体量,只不过在外形上给了一个单元印象,公共性暗示的效果与功能不够符合,建筑的性格还可以再拿捏一下,形式和功能还可以更符合一些。以及菜市场的体量可以适当削减,在竖向上减少层数增加些错洞可能会更生动些。

12
张佳艺
图片
图片
图片
图片
图片
设计说明:地位于元大都遗址公园惠新西街段,小月河北侧。地块位于地铁站出口西侧,原址是天利宏市场及西侧的停车场,在四米高差的基础上,通过南北向一层二层设置成为衔接两侧高差的措施;东西两个体块分别作为满足活动需求的公共空间。在功能设置上,一层即与河道同高作为菜市场及日用商铺,二层作为联系人行道与河岸侧景观与交通,楼梯下探,同时过渡到三层构建居民活动中心。结构上通过六米和八米的柱网尺寸排列柱子、搭建梁架,墙体选用木质材料,选择金属材料搭建框架,倾斜角度,形成统一立面。评委点评:设计考虑东侧地铁站,侧重城市开放空间结点的表现,连接体作为交通空间的趣味性不够,在从上到下构建高差的尝试情况下设计比较少。考虑到居民活动及菜市场的功能设置上,菜市场需要公交或步行,出入口应该在人行道的高度比较合理,在社区开放的程度上需要有些交流。立面上可以继续推敲,表现出社区中心的特质,表达出材质特性。

13
郝雨欣
图片
图片
图片
图片
图片
设计说明:根据场地现状问题,该方案设计提出“INTERSECTION”的总体思路,重在解决建筑与地形、建筑与景观之间的关系问题,使得建筑与周围环境之间产生对话。该建筑设计的形体从简单体块开始推敲,通过体块与场地之间的相交和切割,使建筑融入场地。为了增强建筑与两侧环境的对话关系,在景观设计上延续了建筑的形式语言,并且加入景观台阶、空中走廊等元素,使得人们的活动与场地产生直接联系,丰富、连接了该场地的景观和功能空间,为附近居民提供了更好的生活环境和品质。 

评委点评:是一个稳健、成熟的设计,设计方案完成度高,整体符合社区活动中心的性格特征,方案的体量考虑掌握合适,设计分析到位,造型上木质格栅的材料选择和高低的节奏变化也可以;但木格栅的处理手法如果可以再结合建筑景观朝向会更好,多一些虚实对比。需要注意实际工程中对建筑退红线的要求,北侧展厅入口略压迫道路,平面上需要再考虑。

14
朱临昕
图片
设计说明:通过设计前期对场地现状的实地调研、分析、对场地问题的多次探讨,从而构想如何在解决建筑东西、南北景观连贯性的同时通过建筑空间丰富城市生活。本次方案主要利用临街层建筑体块的扭转和分割,创造了丰富的室外空间并区分了建筑功能,这些景观同时又沟通起南北河道与道路、东西向滨河景观的连续性。体量间的“隙”在区分功能的同时创造更多的外部空间,同时下层建筑和景观又保证两个体量的沟通交流,重焕地块生机。评委点评:建筑的体量关系不错,建筑尺度较为适宜。扭转的比较有意思,有试图通过一些手段消解体块扭转带来的负面因素,比如转角处一层柱子架空,但是正面因素挖掘得还不够,比如入口空间的丰富性,可以放大,可以更加通透,有一点遗憾;临河立面作为菜市场,有些封闭,没有利用好景观通透性;景观视野好的地方被功能布局所局限了,可以更大胆一些。清水混凝土用在社区中心这样一个公共建筑上,可能缺少了一些温暖的性质。另平面布局里还有一些小问题,如卫生间尺度和一些狭小空间如何使用等。

15
郑睿楠
图片
图片
图片
图片
设计说明:方案整体简洁大气,与场地气质结合,旨在打造一处现代的,亲人的社区多功能活动中心。建筑设计从满足以下三个方面出发,第一,结合元大都土城原有700年的历史氛围,第二,满足居民多样的生活需求,第三,解决原有建筑严重割裂了河道和道路的问题。对于建筑形体,采取了双C字型折板样式,两个体块折板方向相对,营造了建筑的简洁感,明快感,在立面材料上采用木饰面,同时悬挂木格栅,而最低层用毛石墙装饰,形成古香古色,自然亲人的氛围。评委点评:计整体很大气,不论是从构思,到体型的处理,还是设计完整度都不错,方案有良好的尺度感,体块高低错落,交互错动,在形体关系的把握上到位。在空间丰富性上,东部临河挑出的体块,形成了滨河富有变化的空间。有一点建议,木质材料虽然和环境适宜,但比例上可能偏多,如果用钢木混合的形式,更能体现都市感,增加材料丰富性。

16
兰雨萌
图片
图片
图片
图片
图片
图片
图片
设计说明:BLOCK,是方盒,也是街区。设计以“盒·睦”为主题,既表达了建筑整体形态为方盒体块,又强调了建筑设计的目的:增强居民交流,促进邻里和睦。为了提高场地临河滨水空间的利用率,本设计结合了场地的四米高差,设置了较大的下沉广场,并通过景观台阶与滨水景观的结合,引导居民视线向下,主动探索,增强滨水场地活力。建筑整体分为三块,外部用壳笼罩。东侧为菜市场、中央为商铺和餐厅功能融合的商业建筑,西侧是社区活动中心中心,体块间通过观景连廊连接。在靠近马路和靠近河流侧,设置了多个出入口,方便老人儿童等不同类型的人群进出。在材质上,主要使用深色石材与混凝土的搭配构建表面,形成了较为稳重的风格,同时使用浅色混凝土形成梁、柱与外框,又增加了一丝活泼。评委点评:设计整体比较成熟,平面功能设计与空间丰富度思考充分,建筑外框与建筑本身形成了很多有趣的小空间,效果图也比较完整清晰。建筑与周围环境的关系较好,景观广场和滨水空间的设计对环境比较友好。但仍有问题需要改进:建筑的外框架体量略厚重,轻巧一点较好。场地景观设计的较好,但小广场本身尺度不大,还是有些稀碎,色彩上黑白灰对比,在造型上没有问题,但是作为社区中心有些冷漠。建筑立面上可以再推敲,比例关系有点跳。

17
马迎雪
图片
设计说明:原场地建筑为天利宏市场,北临北土城东路辅路,南临小月河河岸。经过调研,场地内的主要活动人群为中老年人,少数为年轻游客、儿童,涉及购物、散步等基础的日常活动,是附近居民经常使用的生活场景之一。设计以目标为导向,结合任务书的要求,将所有功能归类为食、娱、赏三个方面,这些都是一个社区中心所需要满足居民的最基本需求,分别对应场地概念中的生存、生活、生色,由这三大功能将基础体块分为三大块,通过通廊、台阶等方式进行有序的组织,人们可以快速、明确地找到自己的目标功能空间并展开活动,由此在场地上形成了井然的生活秩序。评委点评:设计策略贴合居民的生活,以场地原建筑为出发点,重新梳理了功能和体量的关系,一方面满足了真实的使用需求,另一方面也兼顾了场地原有的要素,因此这个设计脚踏实地,生成逻辑合理。另外还特别关注了户外停车、内部菜市场与餐厅的联动等问题,功能考虑全面;在造型方面,体量关系和虚实关系的处理手法娴熟,整体完整度高。但是展厅部分可以考虑适当地利用上层挑空等手法增加空间的变化,更利于布展;挑檐板的形式可以再做进一步的推敲,思考如何增强建筑的现代感。

18
段诗璇
图片
图片
设计说明:临水憩于方合之间。基于原场地建筑功能单一,道路与河流在景观上的不连续等的问题,在改造原市场过程中,进行社区中心及场地周边景观环境的整合设计。建筑的形体以方盒为基础进行变形,通过旋转、削减、增添,使体块适应环境并起到影响环境并引导游人行进路线的作用。建筑体块生成时削减及增添产生的变形与室内外的使用功能相结合,建筑形体的整体斜度更是突出建筑体块方盒之间形成的广场,并且结合河岸作了亲水的处理,使建筑、道路与河流在使用上更加融洽,丰富该地段城市生活。评委点评:临水界面的效果挺好,体块和造型的处理能力与总体的布局都比较不错,结合人流旋转体块进行设计考量,对外部空间的思考很充分,广场的高差也进行了较多的思考,但是对平面功能的思考有点偏于宏观,建筑的功能流线还需更深入的思考,以及建筑的棱角部分与堤岸过近,可适当做虚实对比,做成活动空间等,更加灵活生动。

19
朱纯熙
图片
图片
图片
图片
图片
设计说明:本方案以原有建筑体块为基础,通过简单的体块错动,形成一个使周边居民的日常生活更加简单便捷的公共建筑。首层为社区活动中心,开放式的阅览室连接着建筑中庭,使气氛更加活泼,二层为菜市场区域和展厅,入口独立,不会相互影响,二层东侧经过错动形成观景平台,提供了良好的景观视线,同时通过室外楼梯和庭院将室内外联系起来,丰富了竖向空间。三层为餐厅和商铺,可从建筑内部或外部通过楼梯进入,保证游线互不干扰。

评委点评:建筑整体采用单个完整体块,较有新意,通过体块错位形成了很多小空间。室外空间的处理比较完善,但是室内的空间略显简单,楼梯较少,建筑内部的功能组织和流线安排需要继续细化,功能分区不如多体块的功能明确。

评委总结
董璁:在本次的课程作业中,同学们都投入了非常多的精力,因此作业的成果令人非常满意。尤其本次课题为非本专业的项目,同时在疫情压缩了课程时间的重压下,还能产出这样的成果,已经很不错了。但从另外一个层面上来说,可能是时间的原因,许多作品并没有充分发挥出风景园林专业的特色,对于园林要素设计稍有欠缺,户外环境的细节设计把握还不到位,这一点是让人感到有点遗憾的,希望日后同学们能多加注意这方面的设计。 

莫修权:大家能够在三年级的上学期达到这种水平已经是相当不错的成绩了。在我以往的评图经验中,三年级的建筑学生也是做这种规模的建筑,所以对于风景园林的学生能在同样的时间做出同样的规模很不容易。另外大家的造型能力,以及软件应用方面都已经掌握得很好了,对方案的表达也很到位。但是对建筑的内部空间序列、功能排布以及垂直交通的组织的思考,还需要加强。此外对于红线和建筑之间关系要注重。

 

张亚轩:同学们在造型能力和表达技法上都做得非常好,汇报逻辑清楚,已经具有了扎实的专业基本素养。从建筑专业来说,我们需要对建筑的深层逻辑进行进一步的思考。比如,功能的本质是什么?它不仅仅是两个简单的字,由它引申出来的行为特征、活动需求等等,都需要在我们的设计当中形成一个自洽的体系。

 

马欣:听完了同学们的方案汇报,我感觉受益匪浅。首先,对于三年级的同学在一个学期的时间里能完成这样丰厚的成果是非常好的。接着从建筑设计方面来说,同学们也进行了非常多的思考,我也看到了许多有新意的设计点。但是部分同学对于建筑功能布局的思考,可能还需要进一步的深入。最后还有一点小小的建议,对于我们风景园林专业的学生来说,景观设计还是很重要的,它可以与城市的道路、周围的环境甚至建筑内部的功能产生紧密的关系,这一点在日后的设计要多多关注。