2022顶峰设计奖 | 商业空间实景类获奖作品
发布时间:2023年6月11日 分类:建筑环境作品 浏览量:3945

APEX Design Award 2022
获奖作品展
商业空间
奖项类别
实景类-金奖
作品名称
青柠
设计机构
思所设计
获奖者


美妆店主打高端化妆品的小样售卖。将主打的销售商品置于中间椭圆环形的“星系”中。
流畅的结构线条配合通透明亮的室内灯光效果,给人生动、时尚、潮流的艺术感受。
由不同材料组合而成的艺术装置与装饰道具之间的对比与碰撞来寻找复古未来主义在店铺中的映射效果,展现了一个极具独特魅力的形象。












奖项类别
实景类-银奖
作品名称
安的律动 ANN COLGIN
设计机构
思所设计
获奖者


空间虽无声,却无时无刻借由场域、材质、色彩,与光线诠释着营造者的所思所想,也赋予每个进入者独一无二的体验。注重空间当中的每一细节,建筑与光影的双重叙述,建筑为骨艺术为翼,灯光为韵,空间的几何关系呈现出几何本质的美感。用光影建筑来让空间形成一条灵性的路,倘若你置身其中,定会惊叹于它影影绰绰的视觉美。













当一棵棵树木历经北欧原始森林的严寒与滋养,成长为具备坚毅品质的木材,漂洋过海来到东方这座充满文化底蕴又时尚新潮的城市,经过匠人的雕琢打磨设计组合,以新的形式融合于当地的人文生活中,设计师通过呈现一个附有国际视野的美学臻贵空间,试图探索一种高楼化人居环境与自然融合的新的可能……















作品名称
G级向上生活馆
获奖者

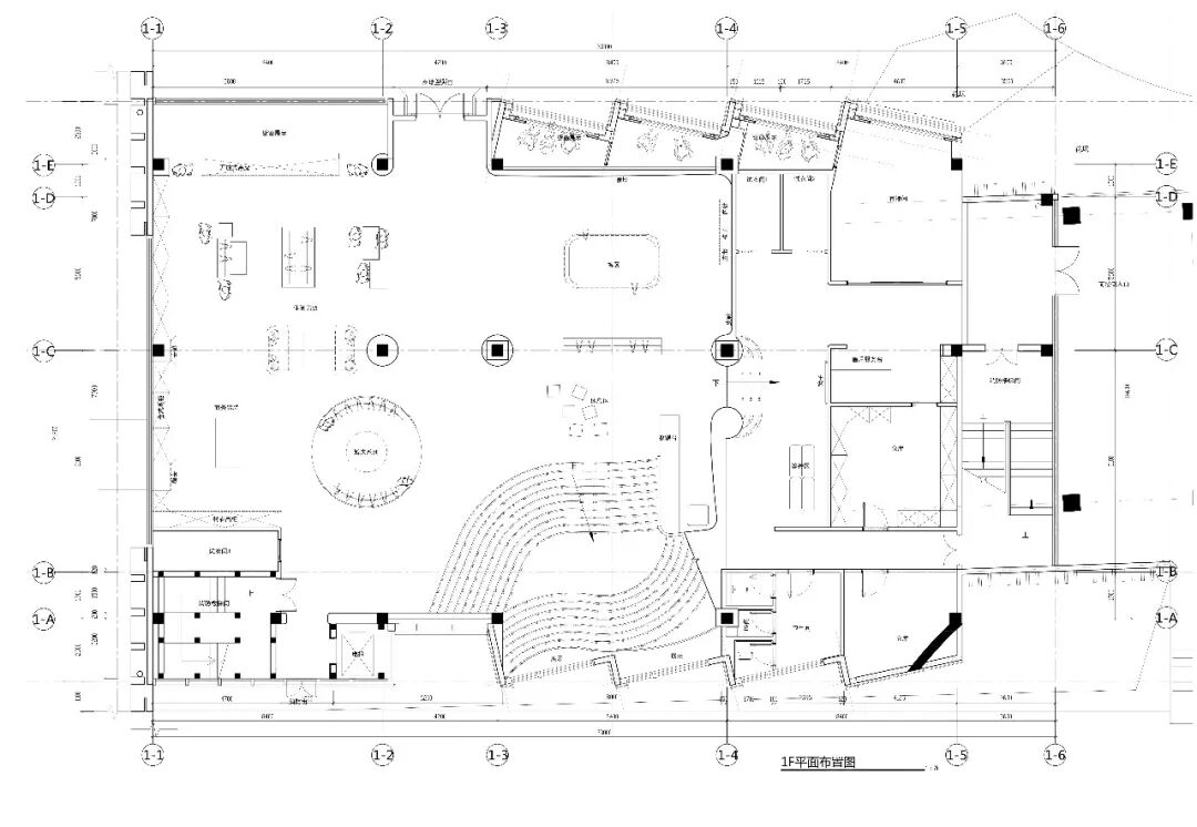
本案建筑共有两层,本次设计范围为二层休闲空间,在功能区分上,一层作为汽车服务展示空间,二层作为休闲、接待空间,利用空间设计手法将传统汽车美容印象重新赋予意义。
本案原始空间为方正的围合空间,没有隔墙,长端的两面均有大面窗户,采光极好。根据需求,本次设计思路在于保留原始建筑表皮的情况下,将前场与后场抬高,将中心部分规划为“共享客厅”,以达到休闲、轻松的氛围。
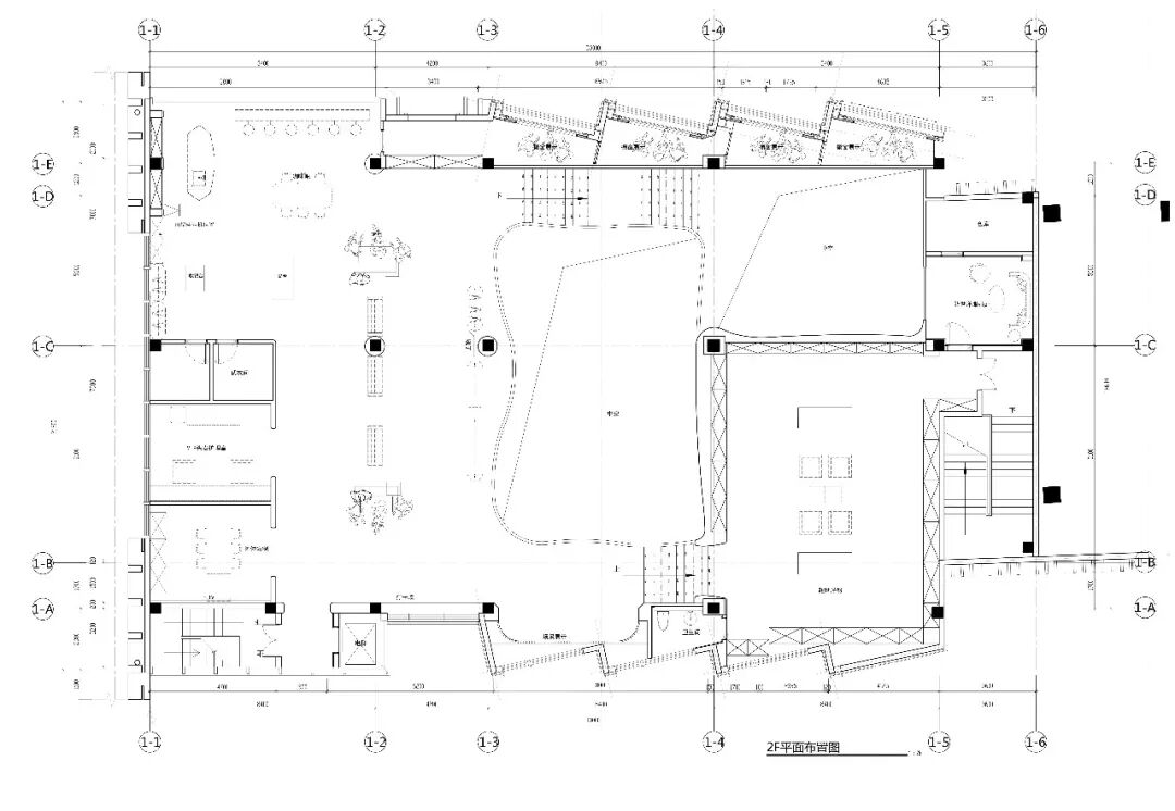
首先,映入眼帘的是通往二层的楼梯,将原本老旧的不锈钢楼梯拆除,在保留原始形态的基础上,将扶手改为从底到顶的隔墙,向上望去,可以发现,横空挑出的两个“木盒子”冲入视线,设计师将极膜品牌红色融入空间,以亚克力的形式呈现,红影印在斜挑“盒子”山,迸发出新潮前卫的气息。
入口处有中国黑石材制作的细长的叠水,穿过洞口淌入石子,叠水贯穿整个空间。往左侧,设计师将直径一米的圆柱体植入空间中,背后竖立着一面墙体,结合着茶台呈现出来,茶台里放置一颗原生石头,微微光亮打在石面上,墙体上方凹不规则的窗口,从多个角度都可以看到不一样的景象。
不仅如此,茶台前方有下沉式大面景观池,设计师将景色搬进室内,运用金属帘与人群产生距离,配合顶部灯膜进行二次丰富,模糊却透亮。对面有竖立起来的景墙,设计师将景墙分割成大小不一的洞口,起到遮挡夏日阳光和卡座背景墙的作用,到午后,一道道的光斑交织追随,格外丰富。
下沉卡座区域采用黑色地毯结合木色卡座,长条的围合卡座搭配几抹亮眼的红色,四周的红色灯带也呼之欲出,相互衬托,尽显朝气。
往后走去,会有一面隔墙挡住视线,仅一个小小的窗口让人隐隐约约,背后是一个小型的阶梯教室,可以满足休闲、学习、团建等功能,左侧也有一面不到底的墙面,同时兼备储物,坐落在阶梯上方,在左侧开出长条形的洞口,结合下方小景观的点缀,让严肃的空间有了些许波澜。
顶面与墙面保留了原始建筑的水泥梁柱,坐区上方局部吊顶,灯带跟随,互相上下错落,穿插变化。










作品名称
云漫酒店
获奖者

洞庭天下水,岳阳天下楼,作为有数临水城市,自然“水”也就成为本项目的设计主题。
项目所在地位于洞庭湖畔,岳阳最古老的街区,在这里能感受地道的老岳阳居民生活氛围。
酒店大厅并非传统布局,这与设计之初的定调平行的,酒店大厅应该具有纯粹而低调的商务和社交气质,让人安宁、抚慰人心的人文氛围相结合,形成不迎合、主客平等的方式,形成酒店性格,大厅虽小,但也能让到来的客人感知到内有乾坤的惬意,体验到设计后的酒店中散发着一种精雅、清爽、有序和关切的气息。
酒店客区的入厅的设计是纯粹的,但同时又承载着对入住来宾优雅的礼仪,原有的物业并非理想状态,在预留的这条走道末端地坪是抬高而又无法更改的,设计过程中,我们顺着抬高的位置,用来自湖边码头上船板为符号设计的悬挑板,无序与逻辑的空间建构让原本呆板的空间具有探索的乐趣。










作品名称
忘不了品牌艺术中心
获奖者
在人类的栖息之地,上演了一出美学萌芽的好戏,洞穴顶上的光线倾泻而下,岩石纹理,流水,梯田,无处不在的曲线,这些天然的景物给人类上了美学的第一堂课,让人类迈出了追寻服饰之美的第一步。
设计思考空间的变奏
借鉴自然景色事物,以天空之眼为灵感,以其为整个建筑的视觉中心,楼梯为纽带,联结着不同的功能分区。将原有建筑二层格局改为四层,扩大了可使用的空间区域,又能让视觉感受变得更为紧凑而有内容,也获得了更大的经营面积,容纳更多的产品,拥有更多的空间感受体验。
光,向上的力量
头顶的光,似乎有一种魔力,驱使着每一个人抬头,向上。空间中具有聚焦意义的光线,能在最大程度上吸引所有人的注意,驱动,憧憬,更亮,向上走,进入第二层空间,离光,在更为接近的地方。
柔与刚,美好的冲突。
一层空间里中黑色钢架结构的服装挂架,像是一种突兀的存在,他独立而孤傲,却又是抓人眼球的绝好装置,在曲线满布的空间中,恰到好处打破了空间的柔美与寂静,这种冲突,能将空间商业价值发掘到最大值,而他的吸睛,则让这里成为最好的产品展示区域。
曲线,生生不息
大自然有很多种优美的线条,梯田,流水,均孕育着生命,给予了人类繁衍生息的机会,她那种重复线条并不单调,反而生机勃,令人向往。我们便借用这种美丽的幅度,再用最简单的材质,去勾勒整个空间里的细节,去描绘这长存世间千万年的情结。
我们摈弃了人工精益求精的那种雕琢之美,用粗犷和细腻两种冲突去表达空间感受,用大自然的痕迹去演绎大美,用精美的服饰去呈现智慧与跨越,用柔和的线条与光线、大地色彩,去诠释忘不了品牌所提出的舒适概念,助力忘不了品牌转型升级之路。





















