2020顶峰设计奖 | 商业空间方案类银奖 -《玩·新》
发布时间:2021年3月19日 分类:建筑环境作品 浏览量:1027

▼
2020 顶峰设计奖获奖作品
特辑 PART 02
—
作者
机构
————

▼






一
生活不仅需要艺术,更需要潮玩的态度,当越来越多的潮、酷元素融入其中,个性与独特的空间由此诞生,这正是这个时代有趣之处。甲方也是个95后有这独特想法和眼界,想要的独特性 潮流性同时也要控制预算。
空间不大想要通透,大气舒适两个舞房占用了很大的面积中间休息的区域很小了,后面顶面才用了镜面的设计然整个空间有反射,镜面的使用,让原本狭长的空间更加通透又可丰富空间层次,颜色及肌理的对比,是一种趣味,更是一种艺术的演绎,面与面、线与线之间的联系,优雅的结构处理方式,营造了一种极简气氛。
拉丝不锈钢和亚力克板又会让整个空间显得简单高级新颖
「我」的设计: 玩趣源于个性

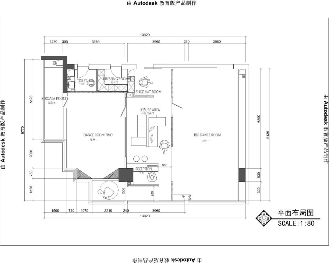
▲平面图







