2021顶峰设计奖 | 建筑室内一体化方案类获奖作品
发布时间:2022年3月24日 分类:建筑环境作品 浏览量:2568

*获奖者专辑将按奖项单元顺序发布
建筑室内一体化方案类
参赛类别 / Category
建筑室内一体化-方案类
作品名称 / Work
湘悦 - 小渔村
获奖者 / Winner
悦木创意设计有限责任公司

▼


尽管与农耕时代相比,我们与自然日间疏远,但久处城市钢筋森林的现代都市人类,对「自然」仍有一种刻入骨髓的美好向往,对餐食的态度,盛放着人们最原始的生活梦想。











建筑室内一体化方案类
SILVER AWARD
参赛类别 / Category
建筑室内一体化-方案类
作品名称 / Work
谭府-归乡
设计机构 / Organization
湖南思所设计
获奖者 / Winner
殷超、刘家星、李赞、潘仲蕾

▼



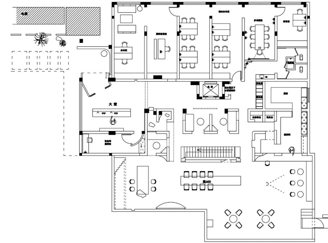
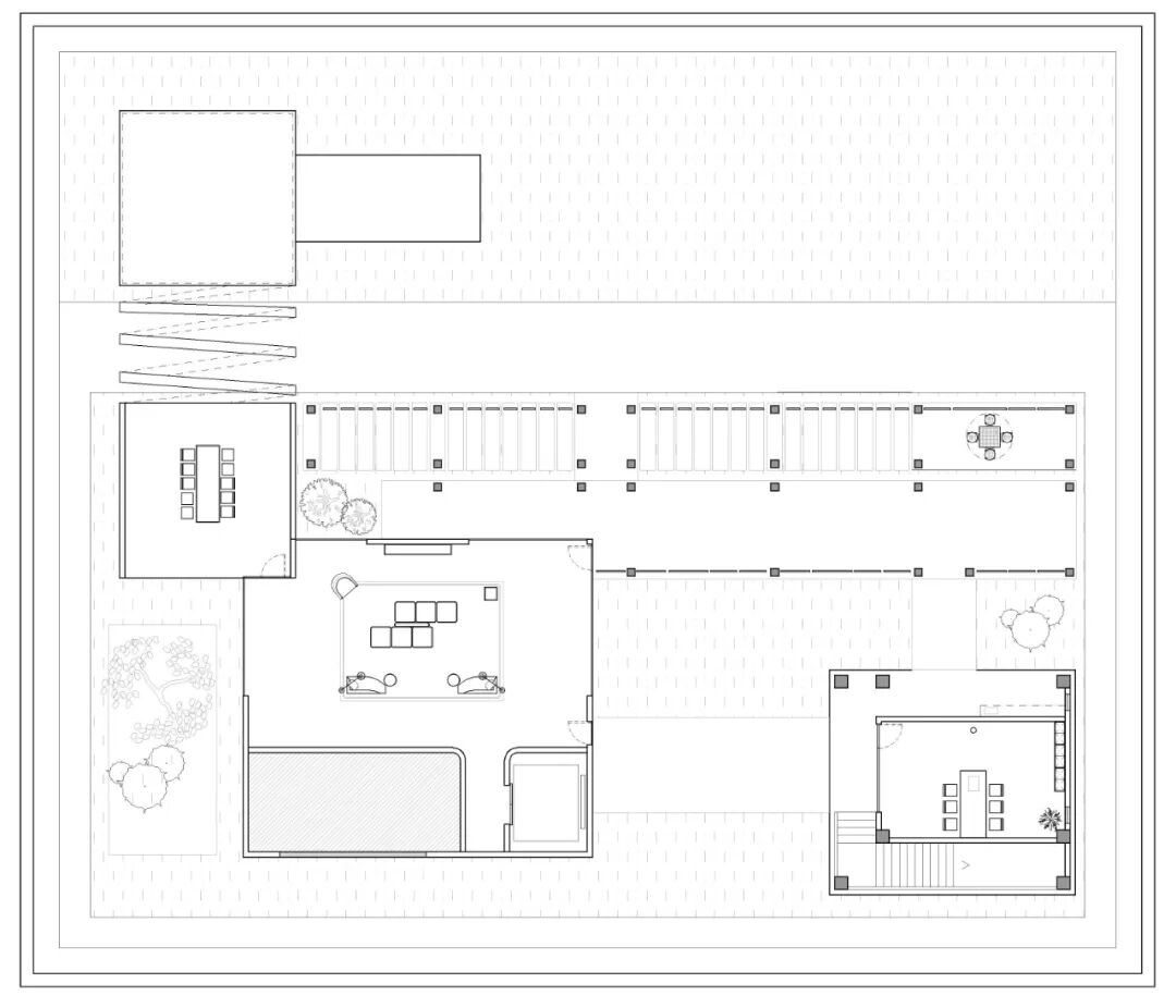
园林平面布置图
心若没有栖息的地方,到哪里都是在流浪。远离城市的喧嚣,寻一方联院,赏石烹茶,会友畅饮,不待时光染白发。此是几多都市奔波、寻求精神家园及灵魂安放之人的渴望。











银奖
▼
▼
意识领域广袤而漫无边际。黑匣子是承载经历、记录时间的信息存储介质。每一位时空旅人在X度过的时光被黑匣子以记忆的方式记录下来。无论欢笑或泪水,都是独以无二的记忆刻本。

在X的物质空间中,黑匣子以形体为框架连接室内与室外。
犹如宇宙中的黑洞引力,神秘而深邃,穿梭其中,仿佛漫步时空隧道,感受其美妙却危险的魅力。

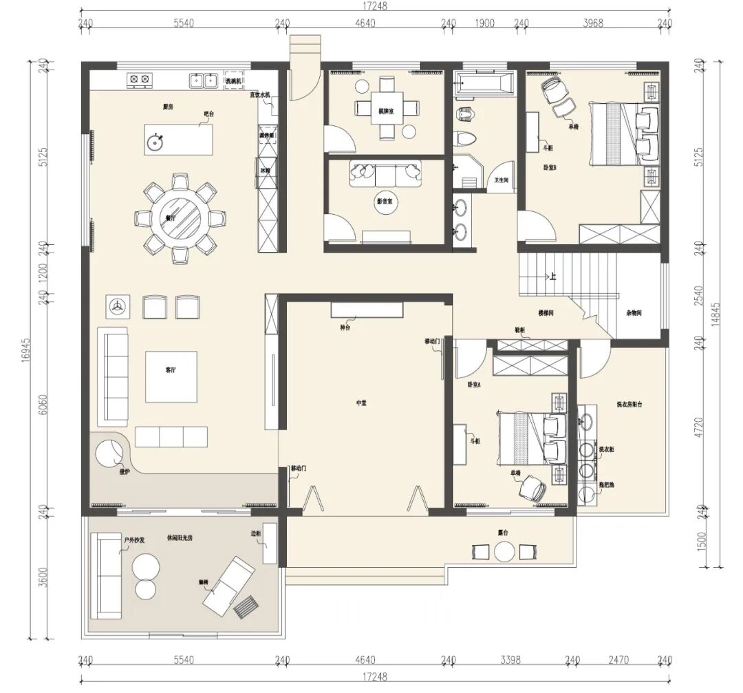
顶楼平面布置图
不知过了多久,时钟再次敲响,管家X的思绪回笼,新一批时空旅客已经到达。
你走过的每一步,都有足迹留下,我是沉默的见证者













建筑室内一体化方案类
BRONZE AWARD
参赛类别 / Category
建筑室内一体化-方案类
作品名称 / Work
共生·宅院改造
设计机构 / Organization
湖南东昱建设有限公司
获奖者 / Winner
朱川琦

▼

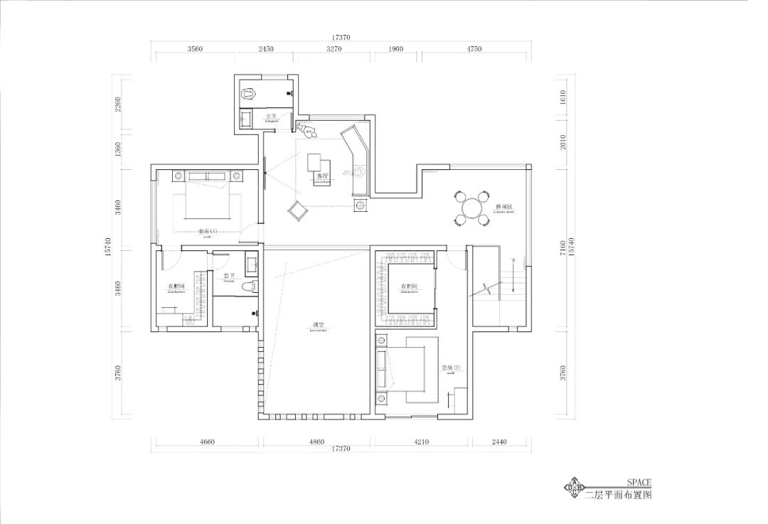
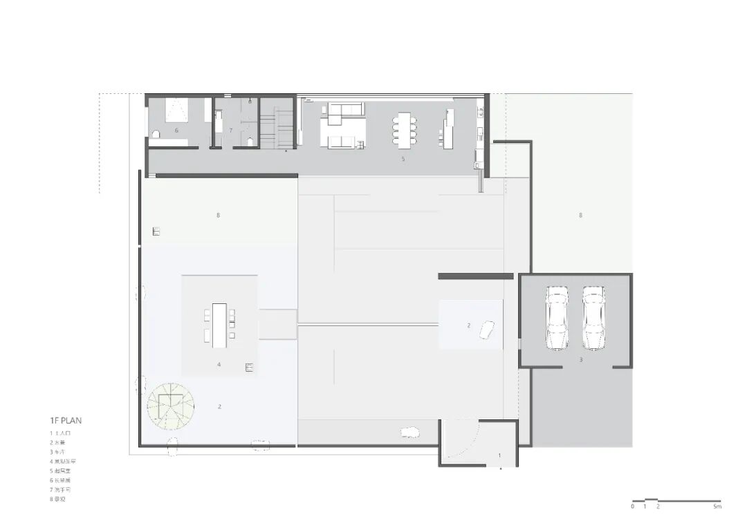
1F平面布置图
室内空间板块在满足居住使用功能的条件下,其大部分的面积给予了自然景观,同时不做过多的形式设计,希望空间能够自由生长,好的住宅是需要人的存在,而人的存在后空间应是有生长的阶段,人与空间相互依赖相互生存的微妙关系,能够达到可持续生长的关系。

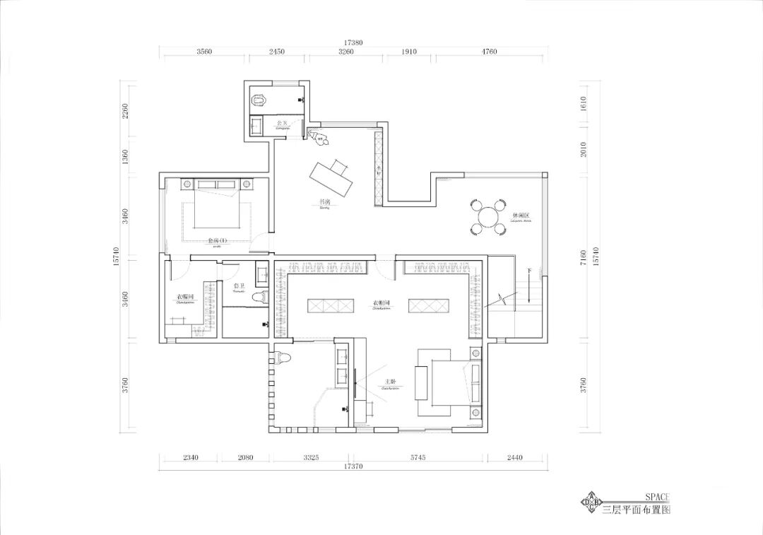
2F平面布置图
室外门厅我们希望是遮而不闭的状态,通过以小见大的设计心理感受,通过门厅见到的是豁然开朗的景观庭院以及对应水景。在西南处设计景观茶亭可供多元化功能使用,屹立在水面的茶亭与居住空间结合现代建筑的手法进行设计,如在自然环境中生长。室内空间最大化保证阳光拥有权,空间设计呈现雅致与精致,减少材料的使用,体现山水留白的一个状态,空间的切割与构成我们用垂直与水平的处理方式,但无论垂直与水平、对比与均衡,我们所体现的均是人文与自然平衡的空间构成体系。








建筑室内一体化方案类
BRONZE AWARD
参赛类别 / Category
建筑室内一体化-方案类
作品名称 / Work
无形万象
获奖者 / Winner
蔡洲、杨昭昭

▼
将建筑与室内功能空间进行合理规划、利用流线以及节奏,用来满足新的使用需求,同时更希望以一种合理且符合人心理特质的方式,将建筑所信息准确的传递给体验者。建筑设计,让室内外协调统一更有内涵。

1F平面布置图
从建筑结构特点与交通动线的细致分析,建筑用一种“艺术空间”的浸入式模式体验来建构整个空间体系,同时将传统展示功能巧妙的嵌入。

2F平面布置图
整个建筑斑驳光影效果,幽静的水面隔绝了城市喧嚣,铅华尽洗,已是别样的心境。到一楼室外休闲平台时,迎面正对的一颗生机盎然的树木与观景石静立水面,震撼中又给人带来某些期许。
客厅整个空间的对景,空间因此豁然开朗,柳暗花明之际,大小不一的采光天窗让阳光自然洒满室内,与室内空间及家具相得益彰,形成了丰富而生动的动态影效。重点将建筑环境与人体系统之间的关系,控制建筑空间尺度、节奏及比例关系,通过不同角度、方向的视线分析及光线的运用,室内外环境关系的处理,来把控和营造整体空间氛围,使得室内空间立面处理得以最大限度的简化。而不是简单的依靠材料或者浮于表面的形式去体现。最终所谓形式、手法均被摈弃于外,纯粹的白色墙面成为空间主体。而白色除了表现空间的纯粹,也带来更多可能性,于“无形”中孕含着“万象”,形成一个将“人文、健康、艺术、科技”融合为一体的多功能艺术空间。

建筑与城市虽不是自然的产物,但许多建筑与城市现象却表现出生命体的特征,同样经历着如同新陈代谢的演变过程。“万物生于有,归于无”,我希望以无形之意,以“精于心,简于形”的方式,让空间不囿于固有的功能与形式,意图建立一种新的健康生活方式,远离疫情,带给人们一种全新的生活体验和精神依托。








建筑室内一体化方案类
BRONZE AWARD
参赛类别 / Category
建筑室内一体化-方案类
作品名称 / Work
栖院
设计机构 / Organization
达人空间设计
获奖者 / Winner
杨君、肖雨

▼

原始肌理与自然色彩的碰撞
将不拘于小节地粗狂与细致入微地细腻结合的恰到好处
呈现原生态质朴的美感
灵动的弧形与圆润的曲面元素
让原本坚毅和冷酷的建筑增添一份柔和

秩序的构建源于墙面对空间的分隔
混沌只有被分割为不同的个体空间时
才有了本体的辨识
人类空间观念的最初形成,是从空间分割开始的


结构作为空间形态
包容实体形态
与虚空形态的有机存在
"围"与"透"之间
既遵循空间的秩序
又实现开阔的尺度


勾勒虚实界面 表达空间的界限关系
描绘侘寂美学的装饰结构特性
重塑本真质朴的东方“裸”感美学。


遮罩,一场关于空间情欲的游戏
情不自禁,欲罢不能
跌宕起伏的情绪变奏中
情趣之于园林



相关:







