2021顶峰设计奖 | 商业空间方案类获奖作品
发布时间:2022年3月31日 分类:建筑环境作品 浏览量:3243

*获奖者专辑将按奖项单元顺序发布
商业空间方案类
GOLD AWARD
参赛类别 / Category
商业空间-方案类
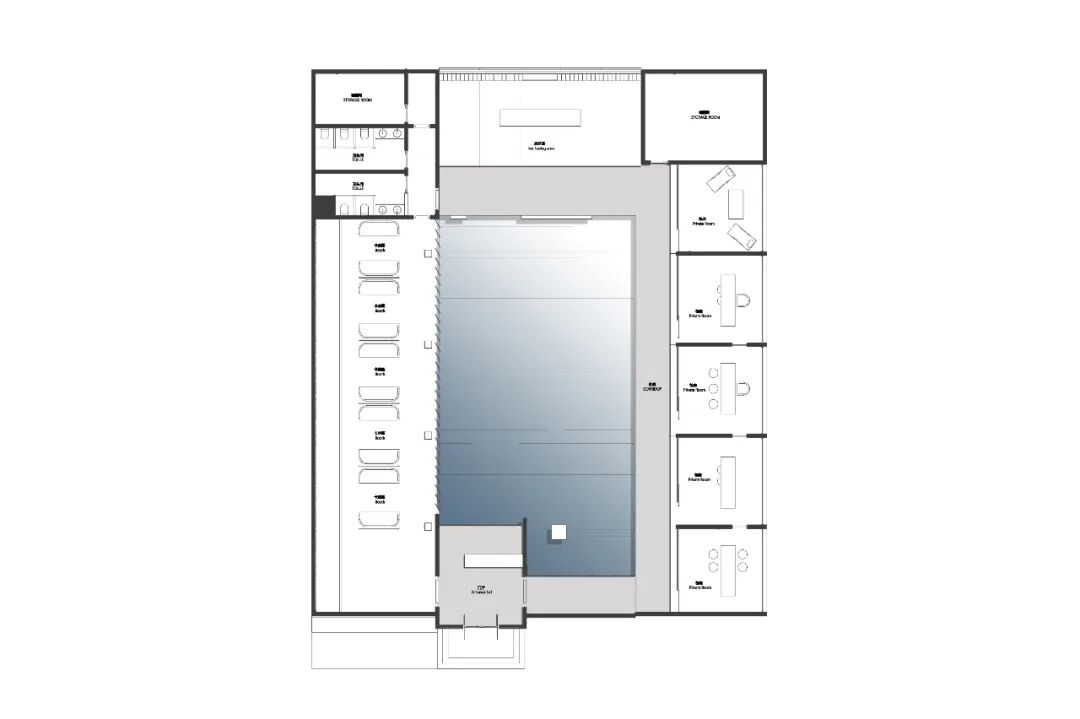
作品名称 / Work
艺术涂料美学馆
设计机构 / Organization
尚层国际设计事务所
获奖者 / Winner
周炳波
▼

大厅的设计,设计师最大限度地秉承了极简的设计理念,从门口进入大厅,没有一件多余的东西,开阔的视野让进入的顾客摒除杂念,用心感受。












商业空间方案类
SILVER AWARD
参赛类别 / Category
商业空间-方案类
作品名称 / Work
Summer Rise 立夏
设计机构 / Organization
北京山乙建设装饰工程有限公司
获奖者 / Winner
吴映

▼






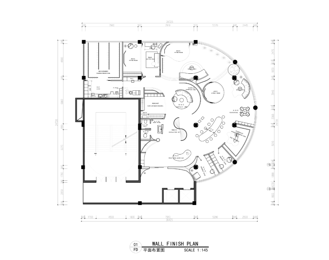
商业空间方案类
SILVER AWARD
参赛类别 / Category
商业空间-方案类
作品名称 / Work
山驛合舍
设计机构 / Organization
山乙山合
获奖者 / Winner
唐亮、周也

▼
此案取名—山驛合舍。在保留了部分原始木框架基础上,通过黑色体块采用基本的形态组合,来凸显老宅固有的气质,是以前匠人手艺与现下建筑的对比强烈。是历经岁月的幽静,醇厚,固执。

本地盛产竹,我们通过自然生态的基本素材来体现空间设计的精、气、神。材质当中的竹编便是改变空间的点睛之笔,通过竹编的再利用重新组合加固喷黑,从而变成空间中的各种形态,竹编的穿插组合,有序也无序,有虚亦有实,意寓有及无品意精神,更突显本案设计的幽静,醇厚本位,更利用放松度假,惬意共处。

山驛合舍空间的设计强调当代和过去历史感的碰撞,休息区里残壁的穿插在幽暗的空间仿佛是现在和过去的对话。暗调性中太阳光通过黑色竹编进来有序无序光线、一堵老墙,一块老旧的石头,使整个空间空灵。茶室里太阳光通过黑色竹编的自然缝隙,形成一道道光线,真实与虚幻的重构,让整个更显和谐宁静的高雅心境。

旅行就像人生,生命必须要有裂缝,阳光才能照射进来,美在本真,是最原始的纯粹。本案山驛合舍空间旨在,有一份心灵的和谐,一份明朗的心情,一份坦荡的胸怀,一切回归本质,聆本意,释本质,唤醒自我对本质之美的感悟。





商业空间方案类
BRONZE AWARD
参赛类别 / Category
商业空间-方案类
作品名称 / Work
山贰苑
设计机构 / Organization
山乙山全装饰工程设计有限公司
获奖者 / Winner
李李宇、杨家骏

▼

红黑经典配色的幔帐垂下窗沿,剧院深沉的帷幕即将拉开,文化的活力即将在这里上演。
设计师运用大量的暗黑色系的和局部的红色点缀的碰撞,打破人们对书院风格的传统认知。通过不同质感的黑色利用一些自然、野性的原始质感与新型的工业科技元素激烈碰撞,并通过设计手法巧妙融合入于此空间的各个层次。为人们打造一个提供聚会场所的第三空间, 一个集休闲、社交、自我提升、释放自我的地方。


结合运用3D打印技术来突显设计中的超现实主义,空间布局中采用了虚实结合的方法,用不同黑色做主体延伸整体设计的基调,给人深沉的疗愈;简单线性的灯光设计映射天圆地方,在空间里穿梭寻找光明的方向。空间自由,山石流水禅意;远离城市,偏安一隅的书院,以茶为媒介。茶香四溢,品茗论道,以茶会友。茶与多元文化在此交融,人文意识在这里培养生长。


从室内到景观一体化的设计与推敲,完成了城市文脉与人居体验融合的理想,茶文化得以在书院的氛围下融合,闪烁着时光淬炼的人文精神。古人的风骨和对精神文化的虔诚逐渐消失在历史长河中,是时代发展必然的结果,也是文化的革新,创造属于我们这个时代的文化传承是我们的动力源泉。



商业空间方案类
BRONZE AWARD
参赛类别 / Category
商业空间-方案类
作品名称 / Work
图窝·新潮
设计机构 / Organization
亚町设计
获奖者 / Winner
谭贻心、陈五木

▼
本案位于新晋网红城市长沙最热闹的市中心区域华远云玺。这里下楼即达市井气息浓重的坡子街,转角去往解放西路酒吧一条街,邂逅来自长沙的暖暖情意,来到这座城市必打卡的“超级文和友”即在楼下。周边的条件完美为在这里入住的民宿创造了绝佳的都市居住体验。
告别千篇一律的民宿的形式,本案业主从最初就强调的是创意式民宿,空间需要具备视觉记忆点的冲击,保留民宿的每套不同的独特设计感;在空间功能性上面积增大,增加了沙发休闲区域;使用体验上更符合居家感的体验;在风格上以创意点为中心呈现出更高端出众的视觉享受。
点·线·面·体的构成

空间设计以直接的视觉点的切入,结合线性的延伸,几何面的组合,形成了体块的穿插。完美演绎出高级的空间。
点——进入空间,有许多让人想拿起手机拍照的冲动。放下行李,参观一番。“长沙”的光影设计、白色的kaws玩偶以及背景墙书页造型中暗藏的灯光。都让人频频发出有趣的感叹。
线——沙发背景墙有抽缝的延伸感,增加本不大气的层高空间。线性灯的呈现也有了空间的秩序感觉。
面——简约的造型结合几何空间结构去契合原始不规则的形态,规避掉房间异形的结构,充分利用房间的优势,而曲面的存在让黑白灰的空间多了一丝温柔的体现。石皮和木质的不同材质面结合也带来空间中同色系的丰富感觉。
体——结构上的穿插关系体现于斯卡帕楼梯的整体设计,再将二楼睡眠区抬高,区别于普通loft的整层搭板也充分利用了空间。室内空间作为建筑的重要组成部分也是建筑性格的内在体现,更多的使用华远云玺的建筑元素引入室内,使之产生强烈的原生感,以求建筑从内到外都有和谐的呼应关系。

最后,空间格局划分为层层递进的三个关系,进门是网红的“长沙”打卡区,搭配GuframxDaniel Arsham的腐蚀镜,给人一种酷酷的体验感。中间是搭配克莱因蓝的生活区,最里面是空间体验感最充足的区域。这个空间每一个区域,每各陈设都为拍照打卡而生。黑白灰的配色,肌理粗糙的石皮材质,让整个空间显得现代感十足。

建筑自带的超大落地窗,自然成为了空间的取景框,增加了空间的舒适度。早上一睁眼就能看到发着光的湘江水缓缓流畅,翻个身俯首看青砖白瓦的老式骑楼,夜晚在游玩后回到房间内放上一池热水,享受这都市带来的畅快与淋漓。而或拥抱懒人熊这大型玩偶的同时边看阳光透过薄纱照进室内,映在窗旁的地面。水面的波光莹莹闪着光,偶尔笛船行过,荡起涟漪波澜;而或转头顺着室内光照到来的方向看去,和三五好友一起聊天,都是愉悦的放松与享受。

不是市场上千篇一律的民宿体验,空间更在意的是更加大方的融入这个城市,在这个居住空间亦能感受到属于这个城市的热闹与热情。沉浸于设计美学之中,仿佛能领略到百年前德国包豪斯校舍中十数位现代主义大师的万丈思想光芒,岁月流转,经典永不褪色。




商业空间方案类
BRONZE AWARD
参赛类别 / Category
商业空间-方案类
作品名称 / Work
MEYUE蜜悦婚纱礼服馆
设计机构 / Organization
CHD集设计机构
获奖者 / Winner
陈瑶、黄茜

▼







END
▼

▼

顶峰设计奖由湖南省建筑室内设计学会发起,联合湖南省建筑设计院集团股份有限公司、湖南省设计艺术家协会主办,集建筑、室内设计于⼀体的全省顶级奖项。“顶峰设计奖”创新提出建筑设计与室内设计⼀体化,逐步模糊建筑设计与室内设计的边界,使建筑设计师和室内设计师两者的专业知识和设计思想互相渗透,达到室内外空间平衡和谐有序进⾏。
顶峰设计奖为旨在促进湖南设计⾏业领域的国际化发展,提⾼⾏业空间设计⽔准。中⼩型建筑室内⼀体化空间设计是能够体现设计经济价值、⽣态价值、艺术价值,从室外到室内、从环境到艺术完整的设计理念,更是未来建筑装饰⾏来发展的必然趋势。
⼤赛以湖南省建筑室内设计学会为平台,秉承“设计·驱动·湖南”为理念,恪守专业、严谨、公平、公正的原则,倡导本⼟原创设计,发掘并表彰优秀设计师及团体。⼒求将“顶峰设计奖”打造成湖南本⼟甚⾄全国的品牌赛事,进⼀步推动湖南设计的创造⼒、设计推动湖南影响⼒的价值转化。







