2021顶峰设计奖 | 公共空间方案类获奖作品
发布时间:2022年3月27日 分类:建筑环境作品 浏览量:2673

*获奖者专辑将按奖项单元顺序发布
公共空间方案类
GOLD AWARD
参赛类别 / Category
公共空间-方案类
作品名称 / Work
無堺
设计机构 / Organization
山乙山合
获奖者 / Winner
彭毅、陶元龙

▼

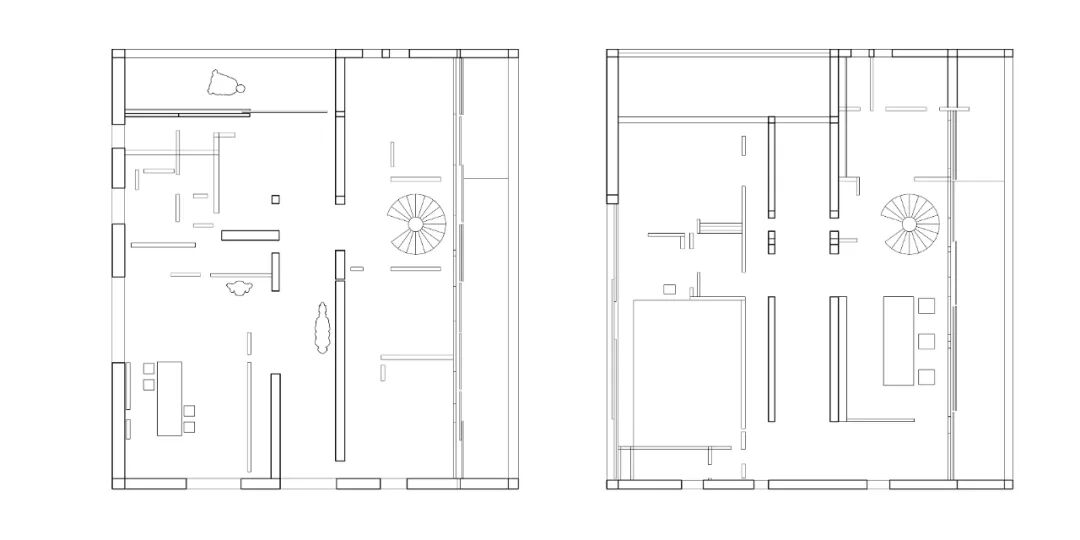
平面布置图1

无界——应该是指无拘无束的生活理念和生活方式!设计思考时的放空!
思想可以无界般的想像和思考!让空间轻松写意,人、生活、空间彼此的状态拿捏,无形中折射出既可以突出实用性顽固桎梏,又能恰当运用元素.







公共空间方案类
SILVER AWARD
参赛类别 / Category
公共空间-方案类
作品名称 / Work
CHD 办公室 设计
设计机构 / Organization
CHD集设计机构
获奖者 / Winner
陈瑶、黄茜

▼
以前瞻性的商业洞察与艺术眼光去严格精简多余的复杂元素,高度匹配了其公司主旨的:年轻、创新。满足了充满活力的新时代城市精英客户们对于美的共鸣。

原始结构图











公共空间方案类
SILVER AWARD
参赛类别 / Category
公共空间-方案类
作品名称 / Work
山涧冥想室
设计机构 / Organization
鸿扬家装
获奖者 / Winner
秦晨、陈铃烨

▼

平面布置图








公共空间方案类
BRONZE AWARD
参赛类别 / Category
公共空间-方案类
作品名称 / Work
蓝光
获奖者 / Winner
湖南省壹方建构设计有限公司
▼

平面布置图
何为办公空间设计革新的必要元素?美学、功能性、现代性亦或是场所精神?无固定工位的空间会成为未来办公设计的趋势吗?办公空间策略应如何科学制定?契合不同“办公性格”的工作环境是应如何设计?职场社交在其中扮演什么角色?人是未来办公的主角,应运用怎样的设计语言在场景中为人的情感归属赋能?科技与技术给办公空间带来便利性是绝对的吗?

本案主题定义为蓝光,特别针对使用人群对于空间的期待。主要人群为00后就职人员,办公氛围活跃,希望空间体现品牌专业感,空间定义关键词为趣、潮、友。年轻活力,充满科技前卫的设计调性最能符合空间的定义。
从平面方案设计时甲方的希望的空间尺度与关怀,到空间立面的语言与细节都是多元思维的碰撞,我们希望空间这个场域能跟人有交互式的交流与沟通.............









公共空间方案类
BRONZE AWARD
参赛类别 / Category
公共空间-方案类
作品名称 / Work
工业再造
设计机构 / Organization
鸿扬家装
获奖者 / Winner
李明

▼

平面布置图








参赛类别 / Category
公共空间-方案类
作品名称 / Work
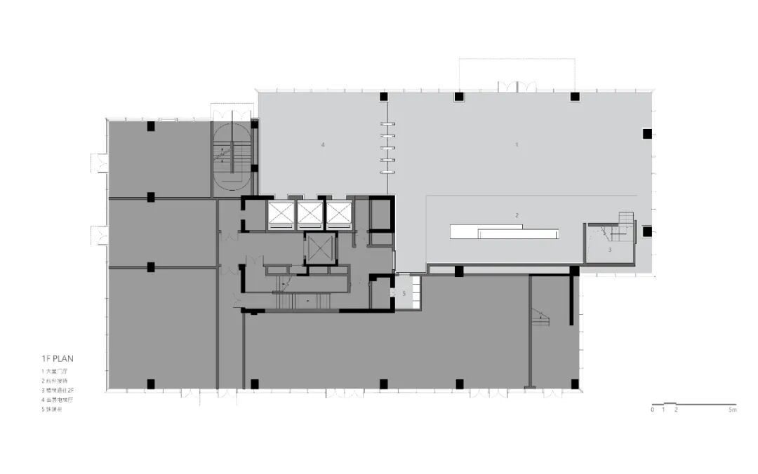
万科天府云城办公楼设计
设计机构 / Organization
湖南东昱建设有限公司
获奖者 / Winner
朱川琦

▼

1F平面布置图
在产品定位上避免与市面上同类产品千篇一律,拉开产品差异化,优化建筑不合理之处,满足运营功能诉求同时,采用去商务化和去波普化、凸显空间本身活力、置入新鲜功能模块等方式,让人进入空间后耳目一新同时为足客户创造更多价值。







▼

顶峰设计奖由湖南省建筑室内设计学会发起,联合湖南省建筑设计院集团股份有限公司、湖南省设计艺术家协会主办,集建筑、室内设计于⼀体的全省顶级奖项。“顶峰设计奖”创新提出建筑设计与室内设计⼀体化,逐步模糊建筑设计与室内设计的边界,使建筑设计师和室内设计师两者的专业知识和设计思想互相渗透,达到室内外空间平衡和谐有序进⾏。
顶峰设计奖为旨在促进湖南设计⾏业领域的国际化发展,提⾼⾏业空间设计⽔准。中⼩型建筑室内⼀体化空间设计是能够体现设计经济价值、⽣态价值、艺术价值,从室外到室内、从环境到艺术完整的设计理念,更是未来建筑装饰⾏来发展的必然趋势。
⼤赛以湖南省建筑室内设计学会为平台,秉承“设计·驱动·湖南”为理念,恪守专业、严谨、公平、公正的原则,倡导本⼟原创设计,发掘并表彰优秀设计师及团体。⼒求将“顶峰设计奖”打造成湖南本⼟甚⾄全国的品牌赛事,进⼀步推动湖南设计的创造⼒、设计推动湖南影响⼒的价值转化。







