2021顶峰设计奖 | 文体医养空间方案类获奖作品
发布时间:2022年4月9日 分类:建筑环境作品 浏览量:2361

*获奖者专辑将按奖项单元顺序发布
文体医养空间方案类
GOLD AWARD
参赛类别 / Category
文体医养空间-方案类
作品名称 / Work
湖风向晚
设计机构 / Organization
鸿扬家装
获奖者 / Winner
张赟、郭轩宇

▼
1F平面布置图
2F平面布置图
展馆外平台可遥看东洞庭湖的风光,走进展馆,曾经鱼市熙熙攘攘的声音循序入耳。侧面自然光从预留的线形顶面散下来,渔网沉甸甸垂着,透出岩石粗糙的肌理。倾斜的顶面顺着延伸角度强调出墙面纪实的文字,讲述着这座渔岛世代的故事。穿过渔具展示区,湖水顺着建筑预留的鱼池流动,巧妙的和室外空间形成互动,声音,光线,空气,充满了于渔岛的自然环境的互动。走到休息区,目光所及是一排展台,顶面暗藏的射灯作为重点照明独立打亮展台。一层错落的台阶上
捧起荒废的渔船,楼梯的结构线和翘起的船身让空间充满了活力,顺着墙面上升的白色楼梯到二层,是图片形式呈现的渔岛历史的展示长廊,倾斜的角度让视觉感受更真实身临其境。








文体医养空间方案类
SILVER AWARD
参赛类别 / Category
文体医养空间-方案类
作品名称 / Work
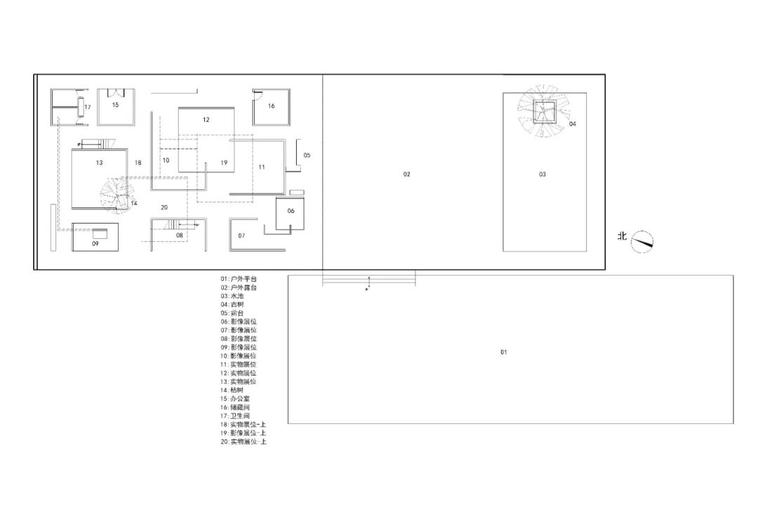
半亩-仁福乡村艺术馆
设计机构 / Organization
长沙近观空间设计有限公司
获奖者 / Winner
李宏亮、王玮

▼
此案的基地原是仁福村党支部附近几栋荒废多年的木结构老屋。泸阳镇位于怀化市东边城郊结合处,这里地势平缓周边群山环绕山清水秀、古木参天、景色迷人。现镇政府决定将老屋完整拆除,建一个向居民免费开放的小型乡村艺术馆,丰富与满足市民的日常休闲文化需求与精神追求。室内的展览面积为650平方米,且位于农田之中,故曰-半亩,寓意“半亩良田”之意。

1F平面布置图







文体医养空间方案类
BRONZE AWARD
参赛类别 / Category
文体医养空间-方案类
作品名称 / Work
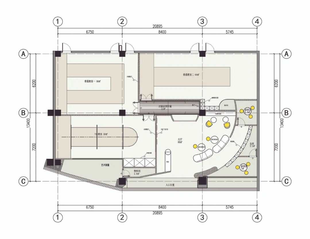
你好超模
设计机构 / Organization
湖南思所设计
获奖者 / Winner
潘仲蕾、汤振、李赞
▼
闪着彩虹的光,在空中飞翔却像烟火,在破灭时盛开
带着自己的愿景,在草坪上奔跑
却像萤火虫,在闪耀时绽放光芒
梦幻光影,奇幻泡影,星星点点
在奇幻的世界渴望保护他们所感知的美好

平面布置图
水磨石、质感面料、细腻皮革
通透彩色琉璃塑造现代质感
结合童趣而自然的明亮色彩
大胆果敢的撞色,散落空间的点点光影
空间整体感得到提升,营造趣味奇幻氛围感
我们旨在用设计打造一场
神秘、童趣、梦幻、艺术交织的魔幻之旅,
通过极致的材质、形态来构成空间层次,
为戏剧化地旅途增加了更多的可能。
以“幻影”抽离现实,徜徉于奇幻世界,
悬浮于如此美丽奇幻之境。纵然世界嘈杂,
但我们对美好生活的向往与憧憬一直踊跃着,从未停歇......







文体医养空间方案类
BRONZE AWARD
参赛类别 / Category
文体医养空间-方案类
作品名称 / Work
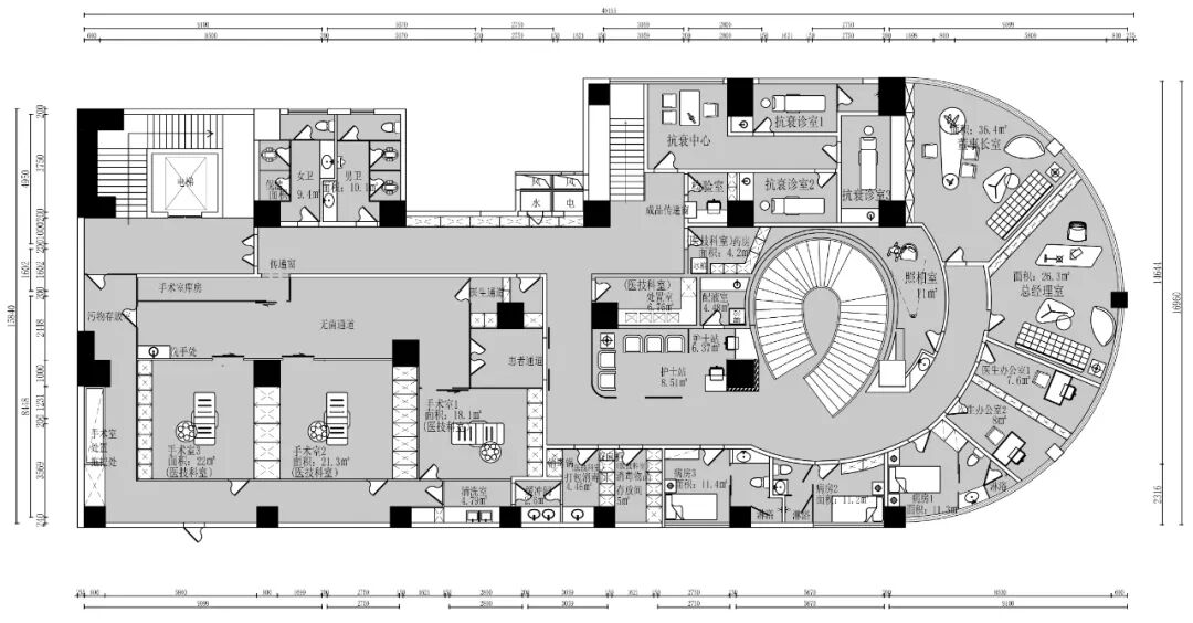
格莱美医美机构
设计机构 / Organization
湖南思所设计
获奖者 / Winner
刘晁宇、成万鑫

▼
本案的创作概念是甲方在医美市场告诉发展到今天,医院与酒店的概念越来越接近,在客户体验上,接近酒店的
公区布置,能够让客人更加安心也更加容易接受。且医美作为较为私密与注重隐私的生活服务项目,较为幽暗精致的风格能够让客户感受到尊重感与仪式感。

平面布置图









END
▼

▼

顶峰设计奖由湖南省建筑室内设计学会发起,联合湖南省建筑设计院集团股份有限公司、湖南省设计艺术家协会主办,集建筑、室内设计于⼀体的全省顶级奖项。“顶峰设计奖”创新提出建筑设计与室内设计⼀体化,逐步模糊建筑设计与室内设计的边界,使建筑设计师和室内设计师两者的专业知识和设计思想互相渗透,达到室内外空间平衡和谐有序进⾏。
顶峰设计奖为旨在促进湖南设计⾏业领域的国际化发展,提⾼⾏业空间设计⽔准。中⼩型建筑室内⼀体化空间设计是能够体现设计经济价值、⽣态价值、艺术价值,从室外到室内、从环境到艺术完整的设计理念,更是未来建筑装饰⾏来发展的必然趋势。
⼤赛以湖南省建筑室内设计学会为平台,秉承“设计·驱动·湖南”为理念,恪守专业、严谨、公平、公正的原则,倡导本⼟原创设计,发掘并表彰优秀设计师及团体。⼒求将“顶峰设计奖”打造成湖南本⼟甚⾄全国的品牌赛事,进⼀步推动湖南设计的创造⼒、设计推动湖南影响⼒的价值转化。







