2021顶峰设计奖 | 餐饮空间实景类获奖作品
发布时间:2022年4月3日 分类:建筑环境作品 浏览量:5007

*获奖者专辑将按奖项单元顺序发布
餐饮空间实景类
GOLD AWARD
参赛类别 / Category
餐饮空间-实景类
作品名称 / Work
一条弧线的碰撞与回响
获奖者 / Winner
水木言设计机构
▼
如果你能改变人们观看的方式,就有可能改变他们思考的方式。
重回事件的“整体性感受”是这次设计初始的出发点。
对于鲍鱼生长的环境——大海,赋予空间的,是面对一片海的辽阔、深远、纯粹与沉思。
海的语境总能与人共情,让人有无限想象的空间。

在中国传统文化里,宇宙、自然和人可以是合成一体的,因此我们希望空间的顶面、立面、地面是个整体,界限是模糊的,合成一个整体犹如海天一色的连接和纯粹,当人步入这个空间时,因为界限的模糊和层次的变化,对于空间大小的判断都会超出实际面积,也就是“小中见大”。


这是一个经历过非常多的业态重复利用的空间,不同业态在离开后留下的空间结构和痕迹都不一样,空间临街面很窄,进深很长,结构柱立在厅中,等等一系列不利因素。设计重新梳理收银台、水吧台、夹层等功能的设置,形成由外而内的“分段式”空间,以避免一览无余造成空间失去神秘性。部分柱体被消化在水吧台及墙体里,形成看上去无柱体的空间。

当我们随机采访客人的感受时,得到最多的回复是“这是一个让人惊喜的体验”,对于一个生活工作节奏很快的城市,客人平均就餐时间超过了70分钟,我们想这个可能是因为“整体性感受”让人能安静下来。









餐饮空间实景类
SILVER AWARD
参赛类别 / Category
餐饮空间-实景类
作品名称 / Work
宝石咖啡
设计机构 / Organization
湖南思所设计
获奖者 / Winner
殷超、汤振、林欣迪

▼

将品尝咖啡的悠闲惬意与新中式空间的素简静融合在一起,用一抹素净的色彩,矩阵方圆的线条,体现宁静致远的中式意境,悠哉乐哉,咖香十里。 在设计过程中,我们寻找空间构造、材料、颜色和动态的正确组合,以便为从繁忙街道忙碌的人提供宁静和平的地方。

宝石咖啡是一个矩形空间,分为户外部分和室内部分。户外部分用黑色岩板、榆木做了大面积的铺装,用粗旷的石材和温暖的木材做门头,将自然的气息体现在楼宇之中,给人以呼吸的感觉。宝石咖啡的门头灯箱镶嵌在岩板中,用延伸的设计手法,一直交接到室内部分,透过户外部分的玻璃,不仅起到了视觉上的引导和指向性,也更好的渗透了户内外空间的交流。入口作为一个过渡空间,我们将入口进行了斜切和穿插的处理,斜切打破横平竖直的布局,更显空间张力,引人入胜。穿插的手法让门头和入口错落有致,可以有效地丰富空间层次感,同时再强化入口的虚实对比,不仅如此,入口的榆木墙面嵌入水泥空心砖,利用不同材质对比、变化也可起到强调入口空间,形成空间引导的作用,空间构造和材质表现相辅相成,达到丰富入口空间的目的。


通过体现“方”与“圆”的玻璃门到达室内,一池中式园林造景映入眼帘,一支枯木,一把散石,饮一杯咖啡,让奔波不安的灵魂,得到静谧的栖居。如此,何理由不沉浸?室内区地面和天花采用深色材料,巧用园林中“黑”的用法技巧,增强对比,提升质感,消隐繁乱层次,凸显空间设计。吊顶的榆木方进行体量的变化和高低错落的纵横交叉,均匀协调,丰富层次,与延伸的灯箱彼此呼应。包厢卡座区采用高差的设计手法,将地面进行抬高的处理,从而使得空间产生层次和主次感。墙面采用则使用透景的手法,将部分墙面进行切割处理,使空间更为灵动,在“方”的切割面中,嵌入“圆”,空间“方与圆”的元素有迹可循,世界万物也充满了“方与圆”的意蕴。卡座区,光影透过水泥构件,跳跃在空间里,塑造空间温暖怡人的气氛,增加了空间层次。

在软装陈设上,多元化的设计理念体现的淋漓尽致,将松柏,陶瓷,乐高,球鞋等等,东南西北的元素放入空间,一方面体现了设计以人为本的理念,满足客户大相径庭的爱好,一方面我们将控制元素的比例与陈设,保证空间和谐舒适的同时,也最大程度的运用了这个设计对多元文化的包容性,为多元文化提供一个恬静乐趣的栖息地。






餐饮空间实景类
SILVER AWARD
参赛类别 / Category
餐饮空间-实景类
作品名称 / Work
酒肉胡同
设计机构 / Organization
湖南思所设计
获奖者 / Winner
刘晁宇、汤振

▼
从原始建筑开始聊吧,原始结构是四间将近5米层高二层商铺,在商业项目是比较好利用的,但是由于承重结构商铺与商铺中间只有门洞大小的连接,且梁位较低。没法做到较大的视觉开间,如果利用层高将空间拉大是设计中的关键。在动线上我们将食客的动线变得迂回,在保证视觉的多次变化情况下保证了在就餐中的隐私。

我们花了非常多时间在风格的定位上,我们不想完全拘于日式风格,在风格上我们融入了很多不同的元素。
胡同/佛学/道场/建筑体块等手法,在材料上我们尽量想做到自然的深色材质与现代的透光材质的结合,达到隐曜的一种状态。在自然材料上我们选择了麻石/黑色木纹/绿植等,透光/反光材料上较多运用镜面/透光板/光纤灯/水晶砖等。

我们希望通过我们的设计后,带给人的体验感是:当他们踏入酒肉胡同的那一刻起,便能从日常的纷繁与压力中脱身而出,在这里获得一场灵魂的自由憩息,畅言酣谈,寻回自我。









餐饮空间实景类
BRONZE AWARD
参赛类别 / Category
餐饮空间-实景类
作品名称 / Work
GAIA盖亚酒吧
设计机构 / Organization
三味创想设计工程有限公司
获奖者 / Winner
许烽、刘伯刚、李亚杰

▼
GAIA LOUNGE BAR - “众神复活计划”
我们团队一直希望把設計做成電影,让空间变得无限可能。我们也一直在找寻像电影般带给设计无限的感染力。这种感染力是设计赋予空间的,但却一定是通过各种设计手法、逻辑语境以及技术手段才得以完成的。

1F平面布置图
当接收到GAIA 的设计任务后,我们尝试在这次的酒吧设计概念上形成一种突破,尝试构筑一个“神-空间-人”三位一体的沉浸式场景体验场景,我们将“过去-当下-未来”作为关键词,以未来“废墟斗兽场”作为空间的主要基础场景,每一个参与到现场的“人”都是个体,都将变成这空间电影里的 “探索者”,就像进入到一部电影里面。 这虚构的未来考古现场,人类尝试将挖掘出的巨大神灵进行复活,我们也不知道这样的行为会发生什么。我们以这样超现实的戏剧性方式展示,极强的空间感与神秘的形式感,让人深感渺小,学会对神灵抱以敬畏之心。这千年后的考古实验现场,让我们思考过去、现在和未来。

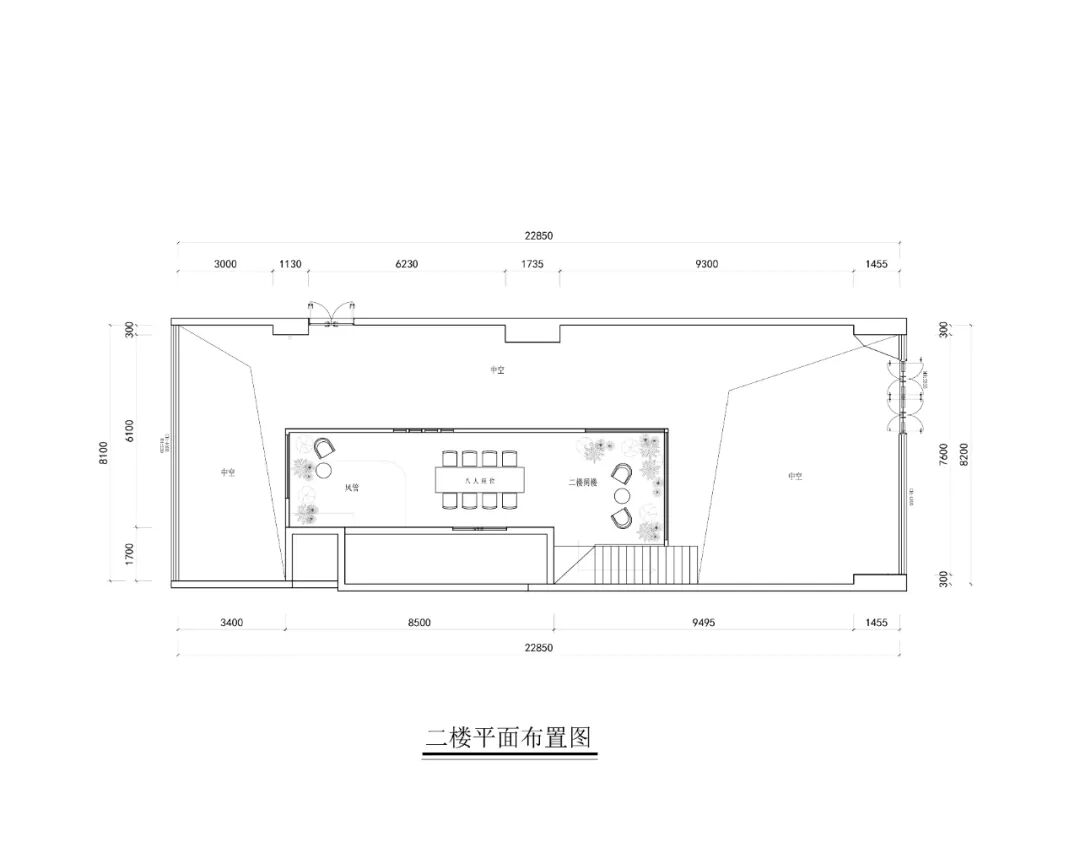
2F平面布置图










餐饮空间实景类
BRONZE AWARD
参赛类别 / Category
餐饮空间-实景类
作品名称 / Work
fengmian coffee
获奖者 / Winner
長沙封面裝飾設計工程有限公司
▼
项目场地位于湖南省长沙市曙光北路119号。整体建筑为框架结构,平面呈L形状长12.6米最宽面4.7米最短面是2.2米高5.1米,外加一个2.6米宽的室外平台.
设计就是帮客户解决问题的。我们在研究原始平面的构架时发现在其中有一些问题。做为一个当街的门面形象不突出,识别性也不高,与客人的互动交流体验性也比较差。所以基于设计师发现的几个问题而我们再来解决相应的问题。1.我们改变了原有吧台位置(事实在后面的营业中证实这点是最成功的,客人在路过的途中中就可以跟服务员交流)2.改变原有入口方向,让入口更明显。3.加大了原有门头遮阳棚让空间的辐射范围更大了,店面展示面就更突出了。

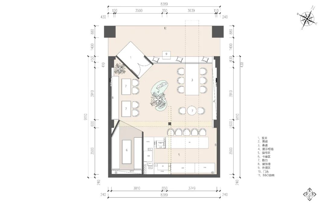
1F平面布置图
咖啡文化与室内空间有着相似的艺术与设计氛围,他们彼此交互、相连。本次设计过程中品牌文化融入对艺术与空间的理解,这样就给设计师提供给不一样的文化视野。最终她们得出对品牌的定义:是多元的,是融合的,也是快乐的,未知的宇宙空间。

建筑肌理 墙面、地面、顶面以工业风的水泥灰涂料为基底,视觉统一触觉温润。中心区域采用球体作为点缀,与整个空间的造型联结为一体,构成独特的星球空间语言,陈设展示区域的克莱因蓝色亚克力搭配金属调和整体空间氛围。

无常的球面体与几何元素构成赋予空间自由快乐的形态,运动中的流线围合出不同的功能分区。置身场景内部,以人眼视角来探索整个星球空间,曲面的蓝色亚克力像是流动的银河中飞船穿梭在太空中维持原本秩序的同时却又在发生微妙的形变。蓝色是天空、是水、是空气、是深度和无限、是自由和生命、蓝色也是宇宙最本质的颜色。







餐饮空间实景类
BRONZE AWARD
参赛类别 / Category
餐饮空间-实景类
作品名称 / Work
吾食·西餐厅
设计机构 / Organization
湘西承艺空间设计装饰有限公司
获奖者 / Winner
杨雪琴

▼
“吾谓饮食之道,亦以其渐近自然也”————
艺术中的留白,赋予了人们以无限遐想的空间以及回味无穷的意境。

它秉持着自然低调的极简主义理念,营造出一个质感层次丰富的空间,为顾客带来沉浸式多维度的感官体验。室内设计遵从并延续其建筑形制,化繁为简,采用精炼的手法构筑大块面轮廓。通过制造一些戏剧感的细节,让各功能分区合理有序的以递进式铺展开来,充分发挥了建筑与空间的对话作用。同时,将开放互动性贯穿其中以突出店面功能层次感,进一步强化整体感以及开阔度,从而实现空间布局的和谐统一。










END
▼

▼

顶峰设计奖由湖南省建筑室内设计学会发起,联合湖南省建筑设计院集团股份有限公司、湖南省设计艺术家协会主办,集建筑、室内设计于⼀体的全省顶级奖项。“顶峰设计奖”创新提出建筑设计与室内设计⼀体化,逐步模糊建筑设计与室内设计的边界,使建筑设计师和室内设计师两者的专业知识和设计思想互相渗透,达到室内外空间平衡和谐有序进⾏。
顶峰设计奖为旨在促进湖南设计⾏业领域的国际化发展,提⾼⾏业空间设计⽔准。中⼩型建筑室内⼀体化空间设计是能够体现设计经济价值、⽣态价值、艺术价值,从室外到室内、从环境到艺术完整的设计理念,更是未来建筑装饰⾏来发展的必然趋势。
⼤赛以湖南省建筑室内设计学会为平台,秉承“设计·驱动·湖南”为理念,恪守专业、严谨、公平、公正的原则,倡导本⼟原创设计,发掘并表彰优秀设计师及团体。⼒求将“顶峰设计奖”打造成湖南本⼟甚⾄全国的品牌赛事,进⼀步推动湖南设计的创造⼒、设计推动湖南影响⼒的价值转化。







