2022顶峰设计奖 | 公共空间方案类获奖作品
发布时间:2023年6月4日 分类:建筑环境作品 浏览量:4472



本案位于长沙市梅溪湖片区的森林公园,长沙市象鼻窝森林公园暂未开放,目前还在规划中。象鼻窝森林公园位于岳麓区梅溪湖街道中塘村,东至三塘冲山脊,西至大坡冲山脊,南至寨子岭山脊,北至规划建设的油松路。
经过实地考察。发现现场有许多天然的大石头、树木与一大片水域。故此在做方案前期,我就在考虑怎么尽量的保护原生态,再把公园现成的这些生态材料利用起来。首选在建筑结构上尽量考虑空间的开阔型,让原有水域可以从室外引到室内空间,让建筑与水结合一体。建筑主体全部用素水泥这种质朴的材质来处理,让建筑与环境相和谐共存。整体建筑规划成三处休闲空间,从步入这个空间开始利用水景的游园动线来增加自然与人的亲近感,再利用一块大石头做成小景、树木加工而成的茶台、结合后期加工成的木隔断来做空间过渡的隔断。中心休闲区域做成两面与水结合一体的开阔空间再与旁边的景色连在一起。整体空间与森林公园特有的地理环境一起营造一种就是让人在里面忘记城市里的条条框框,接触最自然与质朴的材料,让人可以敞开心怀放松心情一处休闲空间。








本案是一家集办公、接待、会客、会议、休闲的综合办公空间。从建筑结构到室内设计,不添加繁杂的原素,只追求最自然原始的建筑之美,在这空间中,简单的原素展现出丰富且强大的表现力,自然倾洒的自然光线,将整个室内的空间感营造出的丰富的生机。
室内在原始建筑的基础上,设计师运用的大量的水泥,红砖,及木料这些极为朴素的原素,再引进室外的自然环境与室内衔接。纯粹的光影赋予了空间强烈的延伸感,自然的光线穿透玻璃在空间错落的层次中肆意流淌,温柔的轻抚着室内空间里的全部。
设计师希望创造一个令人全身心放松的多功能综合办公空间,在这个空间中,工作不在是一种压力、焦虑的事情。在这样的空间中也是一种可以愉悦轻松的心理状态,设计师创造了一个让光流动的空间,在光的赋予下,通过建筑结构、材质的结合,诠释出一个轻松的空间体验,赋予空间不一样的情绪表达和感官感受。













将自然与诗意带入城市
绿色象征着健康、积极、快乐、向上、治愈、自然、生命
从绿色出发,应用在空间设计中,让空间更加国际化,更具有辨识度、记忆感
人与自然原本就是一体,将绿意引入室内,重建与自然的联系......
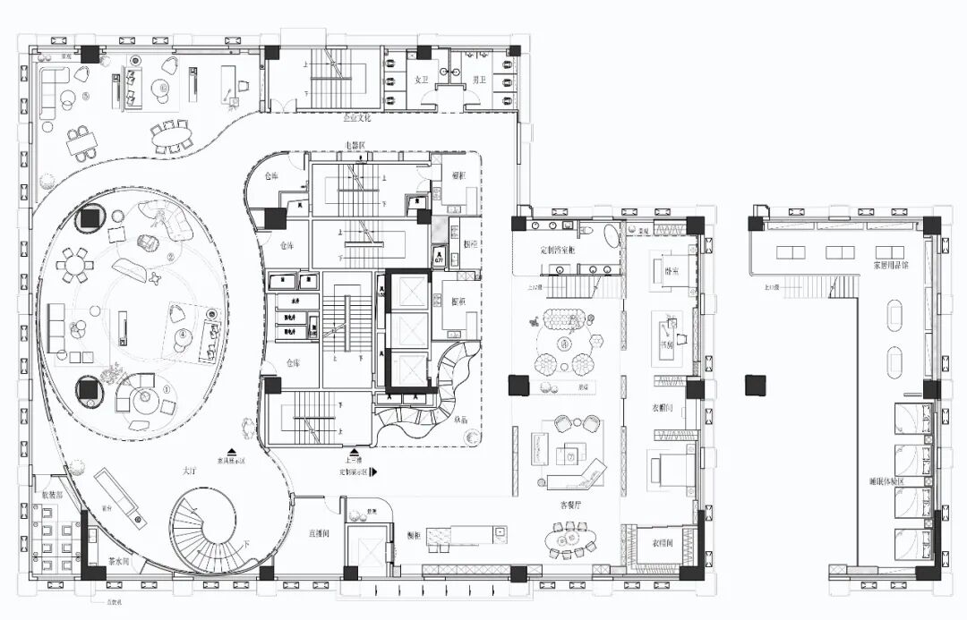
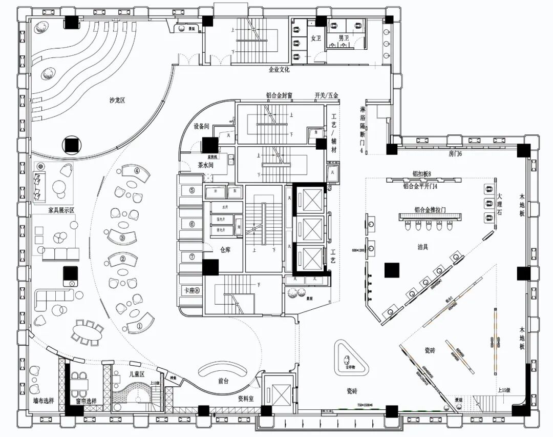
此项目是一家集软装、定制为一体的家居生活馆,设计面积为3000m²,主要定位打造年轻人一站式购物,为更多的年轻群体提供全面便捷的服务。进入展厅空间,仿佛进了一个艺术厅,干净的奶油色系搭配绿色的墙面,简约又不失高级感,让人感觉舒适清新自然……
二楼规划了家具展示厅,柜体定制区,沉浸式家庭氛围体验区,二楼夹层还有家具用品区,多元的品种全面满足客户拎包入住的需求。
三楼规划了客户洽谈区,儿童游乐区,沙龙区,软装搭配选材区,还有硬装的选材区,三楼夹层属于内部办公区域。








无论在怎么样的层面及领域上,人类文明一直处于探索阶段,空间设计也是如此,需要思考空间内存在的任何一个角落,任何一件物品,都需要挖掘出存在及价值的真正意义,本案表达万物皆有起源,在空间设计上来说,任何事物都需要人赋予给它思维及视觉质感的同时,释放出可大胆想象未来的空间感。








商业街“潮”天桥:原本的廊桥早已荒废,现场破旧不堪,早已失去了原有的功能与美观性,与周围的环境格格不入。如何改造,再造,再生是本次设计关注的重点。
一方面能吸引客流,将客户引流到高楼层;另一方面,它是空间的节点,是这个商场和消费者的“沟通桥”。
加强空间体验度,打造创意、高颜值又吸睛的景观,成为美丽能量补给站。通过“机械革命”把赛博朋克这一主题融入到整体设计之中,成为屹立在马路两侧建筑体连接的脉络,加强了人群的流通性。以日出印记为主题,
结合原有三角廊桥结构设置趣味两秒即拍照打卡点,同时又将客户产品进行多方位展示融入设计感;吸引人群流量,打造网红小节点,增强的人们的场所记忆性,自然也增加了客户品牌与产品的曝光度,让建筑与空间产生新的生命力。






有一个地方,可以暂时躲开闹市,做一个追逐捕梦员,停下捕捉一切美好的愿景!有人把梦想化作了星星,闪着彩虹的光,在空中飞翔。把梦想变成海浪,带着自己的愿景,在浩瀚星海中游动。把梦想吹成了泡泡,演变成蒲公英,一阵微风吹过在广阔无垠的陆地中跳起了优美的舞蹈,带着梦想寻找梦的栖息地。这也是梦开始的地方。为追寻自由、烂漫、美好的梦想,我们搭上梦想的航班开始了如梦如幻的未来冒险之旅。
平行空间(A27地块-2#、3#)
这是一场130亿年前的宇宙大爆炸,浩瀚星河下,产生超脱具象的时间与光影,开启了一场探索者在平行空间的光年旅程。
光年旅程(A27地块-4#、5#)
伴随着熠熠星光,冒险家在光的指引下聆听水的涌动,怀揣着坚毅而又炙热的信念在时空中前行。
时空隧道(A27地块-1#)
微风轻抚,小船来到了一片星海,海面泛起涟漪,浪花拍打着礁石,与星沙银河中的小动物们尽情畅游互相嬉戏,探索着这片缤纷世界。
未来之城(A33地块)
遨游过浩瀚星辰,探索过无垠的星海,回眸大地,寻得一片栖息地,将灵魂松绑,治愈心灵的朴质与沉静。
星球、宇宙、未来、理想、家园…通过与自然、建筑及观者的交流,涉取灵感,构筑一个宇宙、世界、空间、人文相互关联的未来生活向上理想国。













