2022顶峰设计奖 | 文体医养空间方案类获奖作品
发布时间:2023年6月29日 分类:建筑环境作品 浏览量:3634

APEX Design Award 2022
获奖作品展
文体医养空间
奖项类别
方案类-金奖
作品名称
懿·境
设计机构
三味创想设计
获奖者


建筑不喧,自有声
空间不言,自从容
在返朴归真的路上,遇见自己
停止时间,
创造平静的、视觉上舒适的空间,
材料的选择也必须增加这一目标。
通过这种方式,
温暖的单色氛围提供了视觉上的平和,
这是由于我们的视野几乎没有结束的事实,
它产生了一个独特的建筑和装饰对象,
依靠空气,光和阴影定义空间。
在这个空间的思考上不喜欢过度的形式化以及商业味的设计风格,更想呈现的是一个质朴、可以令人放松身心的空间。
所以,我们选择运用了大方朴素的侘寂美学。侘寂美学追随的是一种抛弃事物外部特征的思想,洞察生命市身的艺术。这种自在感是能够让你脱下城市的束缚,放下压力,拥抱自由。我们所运用的材料更偏向于朴拙、安静、纯粹的感觉,而灯光也是柔和的,通过漫射的方式来营造氛围,制造代入感。
希望空间的主人能各个方面感受到,花费时间慢慢而愉快地照顾自己的重要性。
在这里可以慢慢享用午饭,也可以洗个澡以恢复精神,进行按摩或练习瑜伽课,还可以泡上一杯咖啡,打开一本喜欢已久的书。











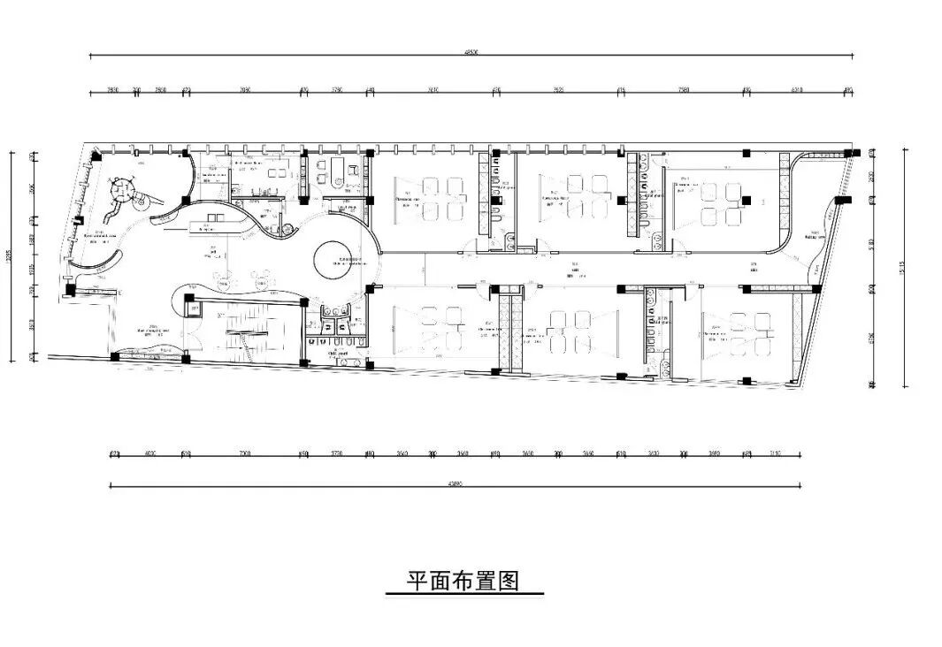
作品名称
E+ PILATES
设计机构
見住所为
获奖者

以咖啡吧为中心向四周辐散,分别是休闲区、普拉提区、禅柔区及哑铃区,依据布局动线配
置独立的卫生间与盥洗室;
储物柜存放学员物品,左侧露台搭建阳光房顶,空间纳入功能使用,增强利用率;
户外露台用以观景及休闲,玻璃隔断增加室内光感,与户外阳台进行空间交流














作品名称
M YOGA瑜伽馆
设计机构
CHD集设计机构
获奖者

本案在设计过程中,我们对一个抽象的概念达成共识——瑜伽馆是作为一个瑜伽修行的载体而存在的,它仅是一条通往瑜伽精神内核并达到神我的通道。于是,我们强调空间的能量与氛围,借助空间重现人类对自我的反思之感,以帮助人们寻求温暖真诚的接触和内在精神的平和;同时我们强调空间的克制表达,将流动的光影引入空间,与自然的材质和肌理互为映照,将这里打造成一片修炼身心的净土。好的空间,能给人带来与众不同的感受。简约之美是将烦扰喧嚣挡在门外,在安静中展示自己内在。
原木色搭配白色的空间,将多余繁缀去除,精简的线条感保证了空间的完整性.营造空间的秩序感和延伸感,所有情绪在松弛的材质语言下变得平缓而悠扬光线通过透明玻璃温和地渗透而入,空间光影互生、变化无穷,在光明与暗淡之中催发自然神性。空间从入口、前厅、过道到教室,整体完成了一场循序无声的心境转变:由广阔到微渺,由外放到向内,由悸动到平和,由晦冥到光明……这个过程犹如从夜至昼的片段推演,也如人们走进这座瑜伽馆,突破身心藩篱找寻真实自我的体验。













奖项类别
方案类-铜奖
作品名称
MOMYHOME睦米托育
设计机构
承艺设计
获奖者

以简洁弧形为主题元素,传递力量和守护。创造更多与他人交流的空间并且连接社区产生更多有趣的多元育儿平台,弧形从地面到立面贯穿整个空间,让步入场所的方式形成丰富的递进、延伸、转换的层次变化。也能进一步的拉近邻里距离,这是个有关陪伴和共同成长的场所。幼儿园设计在颜色的运用上,以原木色、橙色和蓝色为主,大胆选用儿童敏感度高的明亮色彩,形成色彩碰撞,有助于激发儿童对色彩的认知和对空间的想象力。并且对材料的安全严格把控,格外注重空间的环保性和安全性,减少对场地的污染,降低对孩子的伤害。








奖项类别
方案类-铜奖
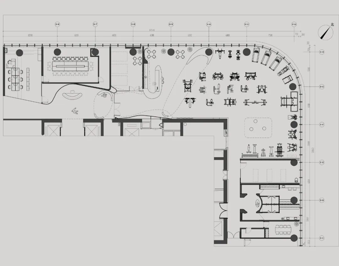
作品名称
碧缇福健身房设计
获奖者












奖项类别
方案类-铜奖
作品名称
童心国际月子会所
设计机构
尺木室内设计
获奖者

后地产时代,以大健康产业引导的区域综合开发模式,正成为尚待挖掘的蓝海。业态迭代的背景下,以单一功能对建筑类型进行定义已逐渐失效,所以本案设计理念为构建一个弹性空间状态来包容适应不同场景的需求,模糊医疗与酒店的明晰边界,叠合康养与度假的多元场景,以此构建回应时代转型需求的未来康养新模式。
本案除了以深思熟虑的设计回应了功能需求,还以高品质的空间向客户做出了强而有力的承诺。房间都有设有独立的配套浴室。当代设计和现代化的管理,旨在积极应对当前的环境挑战。生活空间设施完备,装潢优雅:温暖的木制饰面、明亮的浅色地板,以及吸引人的色彩设计……所有一切都力求创造一个平静、宜人、令人心情愉悦的舒适环境。巧妙的设计在室内外之间建立了和谐微妙的平衡。















